English Deutsch Predaj Oglas (Besplatno!)   Prijava

Realitica oglasi

Traži u Napredno

Prodajem Stan-Apartman, Lazarevo

Vrsta: Prodajem Stan-Apartman
Područje: Banja Luka
Lokacija: Lazarevo
Adresa: Branka Popovića, Banja Luka
Energetski Razred: A
Godina Gradnje: 2026
Spavaćih Soba: 1
Kupatila: 1
Stambena Površina: 28 m2
Parking Mjesta: 1
Novogradnja

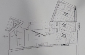
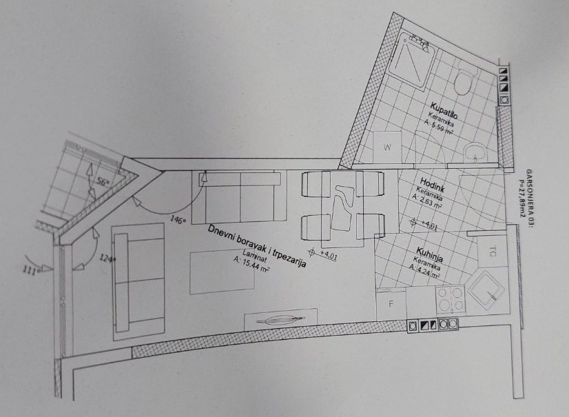
Opis: Prodaje se garsonjera u izgradnji površine 27.89m2 u naselju Lazarevo.

Strukturu garsonjere čini manji predulaz, velika soba/dnevni boravak sa kuhinjom i kupatilo. Stan je smješten na drugom spratu bez balkona.

Zgradu će da karkteriše kvalitetna gradnja i opremljenost, a grijanje u zgradi će biti vlastito grijanje putem kotlovnice.
Zbog svoje kvadrature ovaj stan karakterišu minimalni režijski troškovi, a stan je idealan za samce. Takođe stan predstavlja
odličnu priliku za komercijalne svrhe poput najma.

U cijenu stana ulazi i pripadajuće parking mjesto ispred zgrade.

Planirani rok izgradnje objekta je predviđen za proljeće 2026 godine.

Dokumentacija je uredna sa pravosnažnom građevinskom dozvolom.

CIJENA - 114 000 KM
TEL: +387 66 273 004

Trougao nekretnine s.p


Više detalja na: trougaors.com

Država oglašivača: BA





Oglas Broj: 3699115
Postavljeno: 12 Nov, 2025
Zadnja Promjena: 12 Nov, 2025
Tags: Nekretnine Lazarevo | Prodaja Stanova Lazarevo | Nekretnine Banja Luka | Prodaja Stanova Banja Luka | Apartmani Banja Luka Privatni Smještaj

Kontakt Forma



Prijavi Oglašivača

Kliknite na 'Pošalji' ako ovaj oglašivač koristi lažni Booking ili Airbnb ili ako je tražio IBAN uplatu

Šaljemo poruku. Molim pričekajte ...

Vaša poruka je poslana.

Nismo uspjeli poslati poruku. Molim pokušajte ponovno.

Molimo ispunite sva polja u formi.