English Deutsch Predaj Oglas (Besplatno!)   Prijava

Realitica oglasi

Traži u Napredno

Prodajem Stan-Apartman, Lazarevo

Vrsta: Prodajem Stan-Apartman
Područje: Banja Luka
Lokacija: Lazarevo
Adresa: Braće Podgornika, Banja Luka
Godina Gradnje: 2025

Opis: NOVO U PONUDI!

Banja Luka, naselje Budžak, Ulica Braće Podgornika.
Predstavljamo Vam stambeno - poslovni objekat u izgradnji "SAND CITY" koji je projektovan kao višeporodični (kolektivni) objekat, spratnosti Po+P+7.

Objekat nudi različite vrste stanova koji su dizajnirani da udovolje visokim standardima i pruže udoban i luxuzan životni prostor.
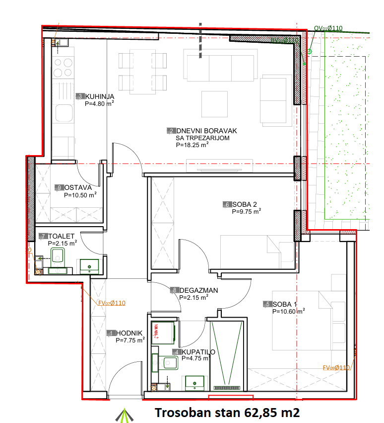
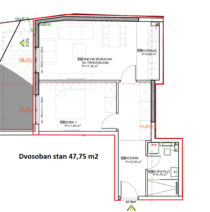
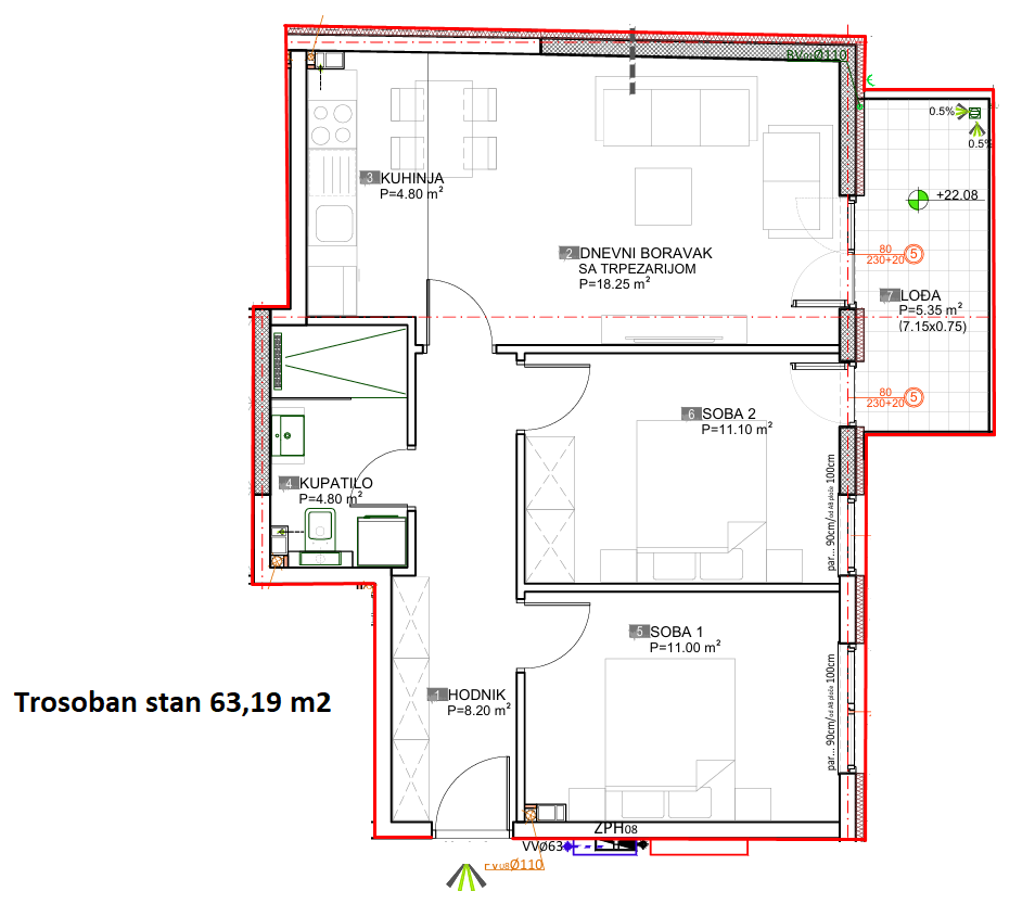
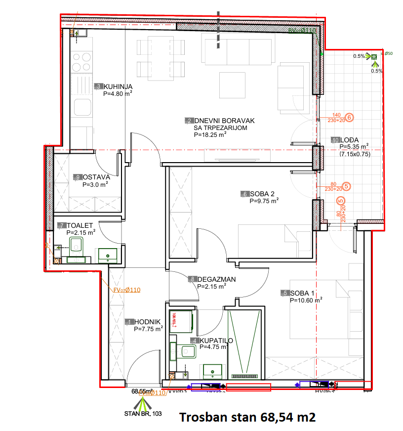
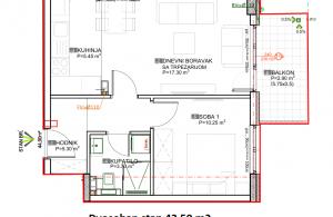
U ponudi su stambene jedinice od 43,50 m2 do 68,54 m2 (po strukturi: dvosobni i trosobni stanovi).

Pored stanova su u ponudi vanjska parking mjesta, kao i garažna parking mjesta u podrumskoj garaži.

"SAND CITY" objekat je dizajniran prema visokim standardima, sa modernom i vizuelnom privlačnom arhitekturom koja naglašava funkcionalnost i estetiku. Posebno ističemo gradnju najvišeg kvaliteta, birajući najkvalitetnije građevinske materijale, instalacije, stolarije i fasade, obezbjeđujući vrhunski kvalitet stanova i maksimum energetske efikasnosti.

Završetak gradnje je predviđen za Septembar 2026.godine sa mogućnošću produžetka od tri mjeseca.


Zgrada je pozicioniran u stambeno/poslovnoj zoni i odlično je infrastrukturno povezan sa značajnim cjelinama grada!





Više detalja na: tntnekretnine.com

Registarski broj: 56 i broj licence: 14.06-320-932/21
Država oglašivača: BA





Oglas Broj: 3516918
Postavljeno: 11 Mar, 2025
Zadnja Promjena: 27 Oct, 2025
Tags: Nekretnine Lazarevo | Prodaja Stanova Lazarevo | Nekretnine Banja Luka | Prodaja Stanova Banja Luka | Apartmani Banja Luka Privatni Smještaj

Kontakt Forma



Prijavi Oglašivača

Kliknite na 'Pošalji' ako ovaj oglašivač koristi lažni Booking ili Airbnb ili ako je tražio IBAN uplatu

Šaljemo poruku. Molim pričekajte ...

Vaša poruka je poslana.

Nismo uspjeli poslati poruku. Molim pokušajte ponovno.

Molimo ispunite sva polja u formi.