English Deutsch Predaj Oglas (Besplatno!)   Prijava

Realitica oglasi

Traži u Napredno

Prodajem Stan-Apartman, Lazarevo

Vrsta: Prodajem Stan-Apartman
Područje: Banja Luka
Lokacija: Lazarevo
Adresa: Braće Podgornika, Banja Luka
Godina Gradnje: 2025
Spavaćih Soba: 2
Kupatila: 1
Stambena Površina: 69 m2

Opis: Banja Luka, naselje Budžak, Ulica Braće Podgornika.

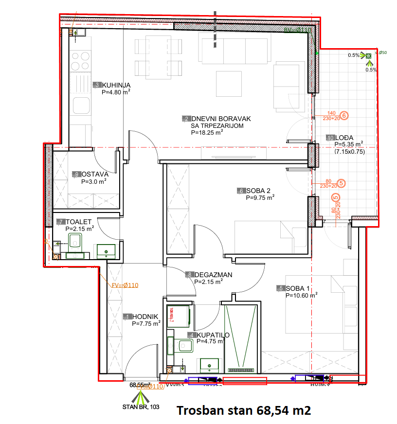
Prodaje se trosoban stan u izgradnji ukupne površine 68,54 m2 na I, II, III, V i VI  spratu stambeno poslovnog objekta “SAND CITY” koji će da posjeduje lift.

Strukturu stana čini: ulazni hodnik, degažman koji odvaja dnevni od spavaćeg bloka, kupatilo, dve spavaće sobe od kojih jedna ima izlaz na lođu, hodnik, toalet, ostava i kuhinja sa trpezarijom u sklopu dnevnog boravka sa izlazom na lođu.

Centralno grijanje će se odvijati iz sopstvene kotlovnice na pelet.
Rok za izgradnju je Septembar 2026.godine sa mogućnošću produžetka od tri mjeseca.

Pored stana su u ponudi vanjska parking mjesta, kao i garažna parking mjesta u podrumskoj etaži.

Dokumentacija uredna!

Više detalja na: tntnekretnine.com/

Registarski broj: 56 i broj licence: 14.06-320-932/21
Država oglašivača: BA





Oglas Broj: 3627350
Postavljeno: 12 Aug, 2025
Zadnja Promjena: 28 Nov, 2025
Tags: Nekretnine Lazarevo | Prodaja Stanova Lazarevo | Nekretnine Banja Luka | Prodaja Stanova Banja Luka | Apartmani Banja Luka Privatni Smještaj

Kontakt Forma



Prijavi Oglašivača

Kliknite na 'Pošalji' ako ovaj oglašivač koristi lažni Booking ili Airbnb ili ako je tražio IBAN uplatu

Šaljemo poruku. Molim pričekajte ...

Vaša poruka je poslana.

Nismo uspjeli poslati poruku. Molim pokušajte ponovno.

Molimo ispunite sva polja u formi.