English Deutsch Predaj Oglas (Besplatno!)   Prijava

Realitica oglasi

Traži u Napredno

Prodajem Zemljište, Kornic, Krk, €180.000

Vrsta: Prodajem Zemljište
Područje: Krk
Lokacija: Kornic
Adresa: Island Krk, Kornić
Cijena: €180.000
Zemljište: 900 m2

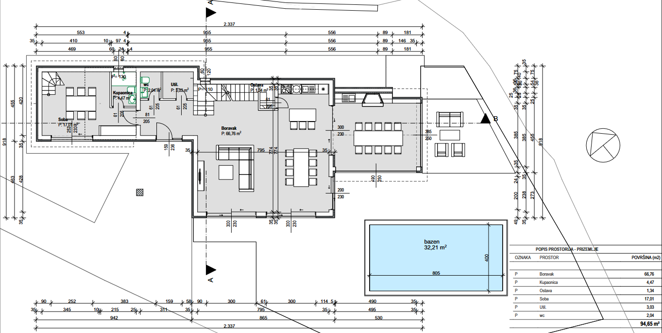
Opis (Engleski): Kornić, Island of Krk – Building Plot with Project for a Modern Villa with Pool, 2 km from the SeaAn excellent opportunity in Kornić on the beautiful island of Krk – for sale is a building plot of 900 m² with a ready project for the construction of a modern family villa with a private pool, just 2 km from the sea.The project includes a spacious two-story villa connected by internal stairs, offering comfort and privacy for a larger family or guests.Project Details:Total gross area: 193.11 m²Ground floor: 110.80 m²First floor: 82.31 m²Footprint: 152.90 m²Swimming pool: 32....

Više detalja na: adrionika.com/ru/nedvizhi...

Država oglašivača: HR





Oglas Broj: 3657242 (144888)
Postavljeno: 22 Sep, 2025
Zadnja Promjena: 22 Sep, 2025
Tags: Nekretnine Kornic | Prodaja Zemljišta Kornic | Nekretnine Krk | Prodaja Zemljišta Krk

Kontakt Forma



Prijavi Oglašivača

Kliknite na 'Pošalji' ako ovaj oglašivač koristi lažni Booking ili Airbnb ili ako je tražio IBAN uplatu

Šaljemo poruku. Molim pričekajte ...

Vaša poruka je poslana.

Nismo uspjeli poslati poruku. Molim pokušajte ponovno.

Molimo ispunite sva polja u formi.