English Deutsch Predaj Oglas (Besplatno!)   Prijava

Realitica oglasi

Traži u Napredno

Split, Mejaši - dvosoban stan u NOVOGRADNJI, 61.76 m2, PRODAJA

Vrsta: Prodajem Stan-Apartman
Područje: Split
Lokacija: Mejaši
Adresa: Split,Croatia
Cijena: €277.920
Spavaćih Soba: 2
Kupatila: 1
Stambena Površina: 61 m2

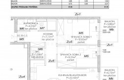
Opis: Agencija za nekretnine Angelus nekretnine Vam nude na prodaju dvosoban stan od 61.76 m2 u NOVOGRADNJI u Splitu – predio Mejaši

LOKACIJA
Stan se nalazi na vrlo mirnoj lokaciji, jugoistočnom dijelu Splita i ima odličnu povezanost s ostalim dijelovima grada. Iznimno urban predio grada koji ima sve potrebno za ugodno življenje. U neposrednoj blizini nalaze se Osnovna škola, vrtići, razne trgovine, dječji parkovi, ljekarna, stanica javnog gradskog prijevoza. Zgrada je udaljena od važnih komunalnih i prometnih točaka: Javni gradski prijevoz - 50 m, Centar grada (Riva) - 4 km, Auto-put Zagreb-Split - 20 km, Zračna luka Split - 25 km.

OPIS:
Prodaje se dvosoban stan u novogradnji ukupne neto površine od 61,76 m2, položen na prvom katu manje stambeno poslovne zgrade, orijentacije I-J. Stan se sastoji od ulaznog hodnika, kuhinje i blagovaonice s dnevnim boravkom, dvije spavaće sobe, kupaonice, wc i dva balkona....

Više detalja na: angelusnekretnine.hr/

Država oglašivača: HR





Oglas Broj: 3658607 (XML-4239-619904)
Postavljeno: 23 Sep, 2025
Zadnja Promjena: 23 Sep, 2025
Tags: Nekretnine Mejaši | Prodaja Stanova Mejaši | Nekretnine Split | Prodaja Stanova Split | Apartmani Split Privatni Smještaj

Kontakt Forma



Prijavi Oglašivača

Kliknite na 'Pošalji' ako ovaj oglašivač koristi lažni Booking ili Airbnb ili ako je tražio IBAN uplatu

Šaljemo poruku. Molim pričekajte ...

Vaša poruka je poslana.

Nismo uspjeli poslati poruku. Molim pokušajte ponovno.

Molimo ispunite sva polja u formi.