English Deutsch Predaj Oglas (Besplatno!)   Prijava

Realitica oglasi

Traži u Napredno

Prodajem Stan-Apartman, Gornja Dubrava, Dubrava, Zagreb Grad, €219.743

Vrsta: Prodajem Stan-Apartman
Područje: Dubrava
Lokacija: Gornja Dubrava
Cijena: €219.743
Spavaćih Soba: 1
Stambena Površina: 59 m2

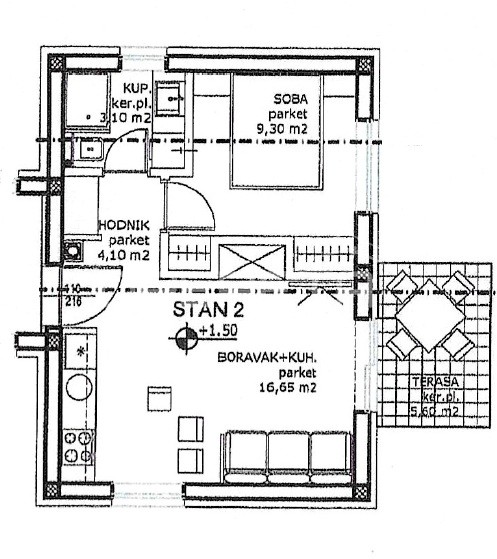
Opis: PRODAJA, STAN, NOVOGRADNJA, ZAGREB, GORNJA DUBRAVA, ČUČERSKA CESTA, 59,00 m2, 2-sobanProdaje se 2-soban stan u prizemlju novogradnje u Gornjoj Dubravi!Na lijepoj lokaciji prodaje se prostrani trosobni stan idealan za miran i kvalitetan obiteljski život.Stan S2 nalazi se u prizemlju suvremeno projektirane zgrade s ukupno pet stanova, što osigurava visoku razinu privatnosti i udobnosti. Zgrada ima tri etaže, a planirani završetak radova i useljenje predviđeni su za jesen 2026. godine.Površina zatvorenog dijela stana: 33,15m²Tlocrtna organizacija:- dnevni boravak s blagovaonicom i kuhinjom u open-space konceptu- 1 spavaća soba - kupaonica s wc-om - terasa (5,60m2)- vrt (83,00m2)- pripadajuće spremište- garažno parkirno mjesto (15,56m2) - vanjsko parkirno mjesto (12,50m2) Svaki stan dolazi s integriranim pametnim sustavom upravljanja putem centralnog zidnog touch zaslona....

Više detalja na: opereta.hr/






Oglas Broj: 3660053 (I33245)
Postavljeno: 25 Sep, 2025
Zadnja Promjena: 25 Sep, 2025
Tags: Nekretnine Gornja Dubrava | Prodaja Stanova Gornja Dubrava | Nekretnine Dubrava | Prodaja Stanova Dubrava | Nekretnine Zagreb | Prodaja Stanova Zagreb | Apartmani Dubrava Privatni Smještaj | Apartmani Zagreb Privatni Smještaj

Kontakt Forma



Prijavi Oglašivača

Kliknite na 'Pošalji' ako ovaj oglašivač koristi lažni Booking ili Airbnb ili ako je tražio IBAN uplatu

Šaljemo poruku. Molim pričekajte ...

Vaša poruka je poslana.

Nismo uspjeli poslati poruku. Molim pokušajte ponovno.

Molimo ispunite sva polja u formi.