English Deutsch Predaj Oglas (Besplatno!)   Prijava

Realitica oglasi

Traži u Napredno

Prodajem Stan-Apartman, Velika Gorica, €265.500

Vrsta: Prodajem Stan-Apartman
Područje: Velika Gorica
Lokacija: Velika Gorica
Cijena: €265.500
Spavaćih Soba: 3
Kupatila: 1
Stambena Površina: 90 m2

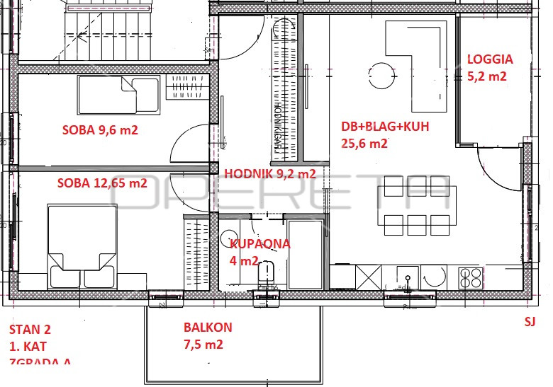
Opis: PRODAJA, STAN, Velika Gorica 70,05 m2ZGD A S2Primamo rezervacije za stan u novogradnji. Manja zgrada sa samo 4 stana. Stan se sastoji od " open space" dnevnog boravka, blagovaonice i kuhinje s izlazom na loggiu, dvije sobe i kupaonice s wc-om. Istoćne je i zapadne orijentacije. U cijeni je garaža, vanjsko parkirno mjesto i spremište od 7,5m2. Odlična lokacija na par minuta pješaćke udaljenosti od osnovne škole, trgovine i autobusne stanice, kao i do svih ostali sadržaja važnih za ugodan život.

Više detalja na: opereta.hr/






Oglas Broj: 3663434 (I28089)
Postavljeno: 30 Sep, 2025
Zadnja Promjena: 30 Sep, 2025
Tags: Nekretnine Velika Gorica | Prodaja Stanova Velika Gorica | Apartmani Velika Gorica Privatni Smještaj

Kontakt Forma



Prijavi Oglašivača

Kliknite na 'Pošalji' ako ovaj oglašivač koristi lažni Booking ili Airbnb ili ako je tražio IBAN uplatu

Šaljemo poruku. Molim pričekajte ...

Vaša poruka je poslana.

Nismo uspjeli poslati poruku. Molim pokušajte ponovno.

Molimo ispunite sva polja u formi.