English Deutsch Predaj Oglas (Besplatno!)   Prijava

Realitica oglasi

Traži u Napredno

Prodajem Stan-Apartman, Čret, Maksimir, Zagreb Grad, €545.000

Vrsta: Prodajem Stan-Apartman
Područje: Maksimir
Lokacija: Čret
Cijena: €545.000
Spavaćih Soba: 3
Kupatila: 2
Stambena Površina: 136 m2

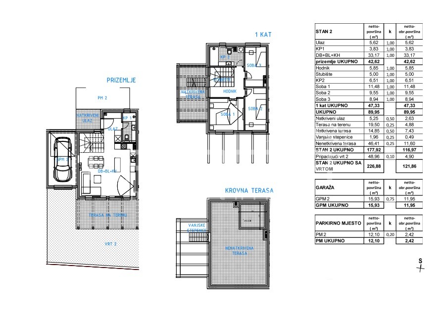
Opis: PRODAJA, NOVOGRADNJA, REMETE, ČRET, 136,23 m2Prodaje se dvoetažan stan (S2) u urbanoj vili u naselju Čret, nedaleko od park šume Dotrščina i Maksimira.Stambena površina iznosi 116,97 m2. Prizemlje se sastoji od kuhinje s blagovaonicom, dnevnog boravka koji ima izlaz na vrt te kupaonice dok se na katu nalaze tri spavaće sobe i kupaonica. Stanu pripadaju i tri terase, od kojih je jedna krovna sa otvorenim pogledom na Zagreb. Svaka vila imati će svoju garažu te vanjsko parkirno mjesto. Postoji mogućnost kupnje dodatnog parkirnog mjesta.Cijela konstrukcija zgrade je betonska, protupotresna, vanjski izgled zgrade krasiti će ciglene ploče. Stolarija je PVC troslojna sa alu-roletnama na električne podizače.Akcijska cijena u početnoj fazi izgradnje! Više informacija na upit.

Više detalja na: opereta.hr/






Oglas Broj: 3664449 (I33215)
Postavljeno: 1 Oct, 2025
Zadnja Promjena: 1 Oct, 2025
Tags: Nekretnine Čret | Prodaja Stanova Čret | Nekretnine Maksimir | Prodaja Stanova Maksimir | Nekretnine Zagreb | Prodaja Stanova Zagreb | Apartmani Maksimir Privatni Smještaj | Apartmani Zagreb Privatni Smještaj

Kontakt Forma



Prijavi Oglašivača

Kliknite na 'Pošalji' ako ovaj oglašivač koristi lažni Booking ili Airbnb ili ako je tražio IBAN uplatu

Šaljemo poruku. Molim pričekajte ...

Vaša poruka je poslana.

Nismo uspjeli poslati poruku. Molim pokušajte ponovno.

Molimo ispunite sva polja u formi.