English Deutsch Predaj Oglas (Besplatno!)   Prijava

Realitica oglasi

Traži u Napredno

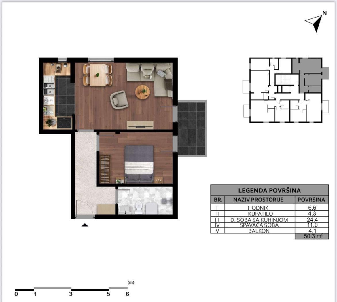
Prodajem Stan-Apartman 51m2, Zagorič

Vrsta: Prodajem Stan-Apartman
Područje: Podgorica
Lokacija: Zagorič
Cijena: €102.000
Spavaćih Soba: 1
Kupatila: 1
Stambena Površina: 51 m2

Opis: Prodaje se jednosoban stan u izgradnji 51m2 na početku Zagoriča. Stan se nalazi na drugom spratu nove stambene jedinice koja je se radi po svim standardima. Struktura stana: ulazni hodnik, dnevni boravak, kuhinja, spavaća soba, kupatilo i terasa. Raspored prostorija je idealan, imaju dosta svjetlosti i izuzetno su prostrane. Ovaj stan je sjeverno orijentisan.Radovi teku planiranom dinamikom i njihov završetak planiran je za oktobar 2027 godine.

Država oglašivača: ME





Oglas Broj: 3666659
Postavljeno: 3 Oct, 2025
Zadnja Promjena: 28 Oct, 2025
Tags: Nekretnine Zagorič | Prodaja Stanova Zagorič | Nekretnine Podgorica | Prodaja Stanova Podgorica | Apartmani Podgorica Privatni Smještaj

Kontakt Forma



Prijavi Oglašivača

Kliknite na 'Pošalji' ako ovaj oglašivač koristi lažni Booking ili Airbnb ili ako je tražio IBAN uplatu

Šaljemo poruku. Molim pričekajte ...

Vaša poruka je poslana.

Nismo uspjeli poslati poruku. Molim pokušajte ponovno.

Molimo ispunite sva polja u formi.