English Deutsch Predaj Oglas (Besplatno!)   Prijava

Realitica oglasi

Traži u Napredno

Prodajem Stan-Apartman, Radanovići, Kotor, €125.000

Vrsta: Prodajem Stan-Apartman
Područje: Kotor
Lokacija: Radanovići
Cijena: €125.000
Spavaćih Soba: 1

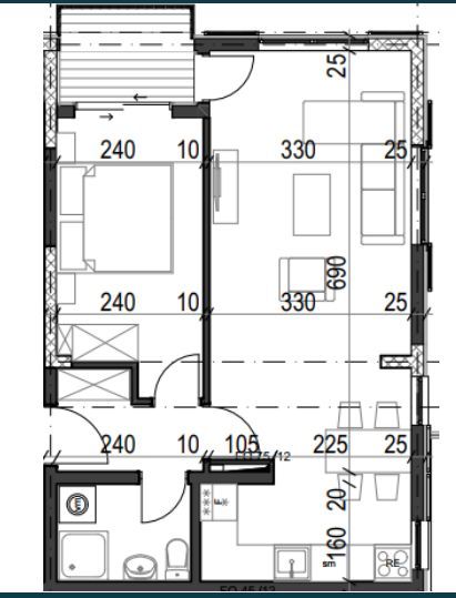
Opis: Na prodaju je jednosoban stan 50m2, smešten na prvom spratu prestižnog stambenog kompleksa Palazzo Jaz, lamela B.

Stan je dostupan po dve opcije plaćanja:

Cena za 100% plaćanje unapred: 125.000€

Cena za plaćanje na rate: 135.000€

Početak radova planiran je za oktobar 2025. godine, dok je završetak predviđen do 31.12.2027. godine.

EKSKLUZIVNA PRILIKA ZA ULAGANJE
Prodaja stanova u savremenom kompleksu Palazzo Jaz sa bazenom u Kovačkom Polju, opština Kotor

Predstavljamo vam jedinstvenu priliku za kupovinu stanova u luksuznom stambeno-turističkom kompleksu Palazzo Jaz u izgradnji, smeštenom na prestižnoj lokaciji Kovačko Polje, između Budve i Tivta.

Kompleks čine dva savremena objekta (Prizemlje + 2 sprata), ukupne neto površine 2.562 m², na placu od 2.560 m².
Početak radova planiran je za oktobar 2025., sa rokom završetka 31.12.2027.

U ponudi su stanovi različitih struktura – od studija, jednosobnih i dvosobnih jedinica, površina od 25 m² do 71 m², pažljivo projektovani da zadovolje sve potrebe savremenog života....

Više detalja na: amforaproperty.com/me/det...

Država oglašivača: ME





Oglas Broj: 3668070
Postavljeno: 4 Oct, 2025
Zadnja Promjena: 4 Oct, 2025
Tags: Nekretnine Radanovići | Prodaja Stanova Radanovići | Nekretnine Kotor | Prodaja Stanova Kotor | Apartmani Kotor Privatni Smještaj

Kontakt Forma



Prijavi Oglašivača

Kliknite na 'Pošalji' ako ovaj oglašivač koristi lažni Booking ili Airbnb ili ako je tražio IBAN uplatu

Šaljemo poruku. Molim pričekajte ...

Vaša poruka je poslana.

Nismo uspjeli poslati poruku. Molim pokušajte ponovno.

Molimo ispunite sva polja u formi.