English Deutsch Predaj Oglas (Besplatno!)   Prijava

Realitica oglasi

Traži u Napredno

Prodajem zemljište u Trapistima

Vrsta: Prodajem Zemljište
Područje: Banja Luka
Lokacija: Trapisti
Cijena: €25.550
Zemljište: 3.900 m2

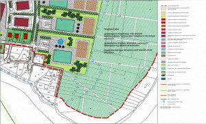
Opis: Prodajemo dva identična placa, svaki površine 3900 m2, smještena u idiličnom naselju Trapisti sa pristupom rijeci Vrbas. Ova izuzetna lokacija nudi neograničene mogućnosti za rekreativne aktivnosti i opuštanje uz vodu.

Prema trenutnom regulacionom planu, na ovim placevima nije dozvoljena gradnja objekata trajnog karaktera. Međutim, dozvoljena je izgradnja manjih objekata poput paviljona ili terena za različite sportske aktivnosti kao što su teniski tereni ili tereni za rekreaciju.

Važno je napomenuti da se očekuje izmjena regulacionog plana, što bi moglo otvoriti nove mogućnosti za korištenje ovih parcela. Ova promjena može donijeti veću fleksibilnost u pogledu vrste objekata koji se mogu graditi na placu, pružajući potencijalne investitore sa većim izborom opcija za razvoj.

Ako tražite idealno mjesto za investiranje ili razvoj rekreativnog prostora uz rijeku Vrbas, ovi placevi u Trapistima mogu biti savršen izbor. Za više informacija ili da zakažete obilazak, slobodno nas kontaktirajte.

Država oglašivača: BA





Oglas Broj: 3669965
Postavljeno: 7 Oct, 2025
Zadnja Promjena: 7 Oct, 2025
Tags: Nekretnine Trapisti | Prodaja Zemljišta Trapisti | Nekretnine Banja Luka | Prodaja Zemljišta Banja Luka

Kontakt Forma



Prijavi Oglašivača

Kliknite na 'Pošalji' ako ovaj oglašivač koristi lažni Booking ili Airbnb ili ako je tražio IBAN uplatu

Šaljemo poruku. Molim pričekajte ...

Vaša poruka je poslana.

Nismo uspjeli poslati poruku. Molim pokušajte ponovno.

Molimo ispunite sva polja u formi.