English Deutsch Predaj Oglas (Besplatno!)   Prijava

Realitica oglasi

Traži u Napredno

Prodajem Stan-Apartman, Šestinski Dol, Črnomerec, Zagreb Grad, €330.000

Vrsta: Prodajem Stan-Apartman
Područje: Črnomerec
Lokacija: Šestinski Dol
Cijena: €330.000
Spavaćih Soba: 2
Kupatila: 1
Stambena Površina: 73 m2

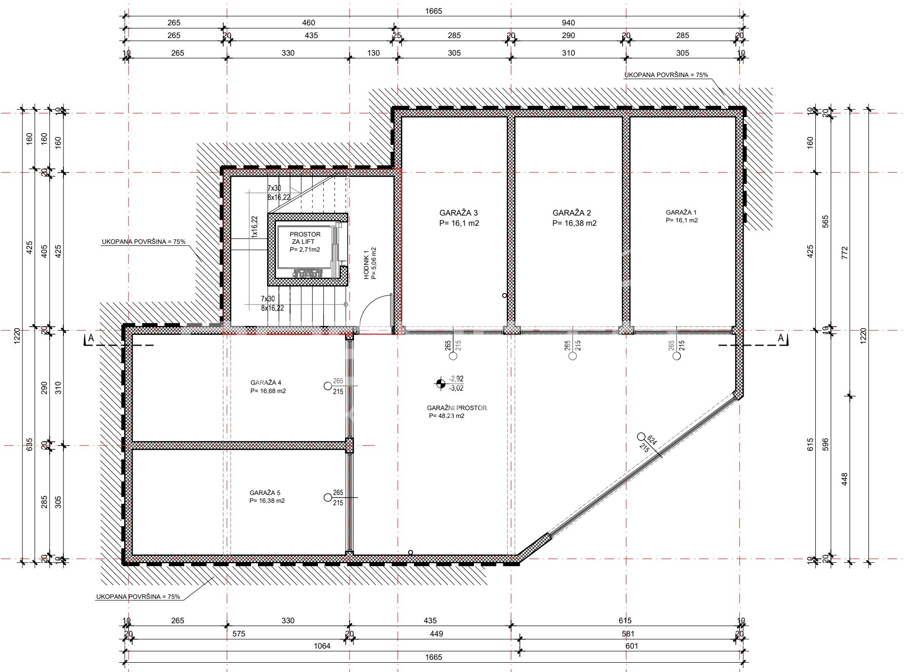
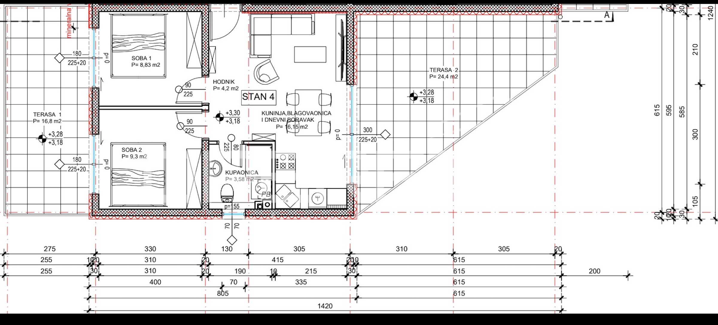
Opis: STAN, ZAGREB, ŠESTINSKI DOL, PRODAJA. STAN BR4, ZGRADA JUGTrosoban stan s pripadajučim parkirnim mjestom i garažnim mjestom.1 kat s liftom!Visina stropa 295cm!OPREMA:Stolarija aluminijska s električnim roletama na wifi upravljanje i komaricama. Klizne stijene su podizno-klizne 300x225cm, a prozori velikih dimenzija 180x180cm.Keramičke pločice u kupaonici I: klase .U prostorijama parket 1. klase.Grijanje je podno na plinski bojler.Klima jedinice u svakoj prostorij.Garaže će imati pripremu za punjače vozila.U zgradi će biti video nadzor, a prilaz će biti grijan.PLANIRANI ZAVRŠETAK GRADNJE KRAJ 2026, POČETAK 2027!PREPORUKA!

Više detalja na: opereta.hr/






Oglas Broj: 3674172 (I33514)
Postavljeno: 11 Oct, 2025
Zadnja Promjena: 11 Oct, 2025
Tags: Nekretnine Šestinski Dol | Prodaja Stanova Šestinski Dol | Nekretnine Črnomerec | Prodaja Stanova Črnomerec | Nekretnine Zagreb | Prodaja Stanova Zagreb | Apartmani Črnomerec Privatni Smještaj | Apartmani Zagreb Privatni Smještaj

Kontakt Forma



Prijavi Oglašivača

Kliknite na 'Pošalji' ako ovaj oglašivač koristi lažni Booking ili Airbnb ili ako je tražio IBAN uplatu

Šaljemo poruku. Molim pričekajte ...

Vaša poruka je poslana.

Nismo uspjeli poslati poruku. Molim pokušajte ponovno.

Molimo ispunite sva polja u formi.