English Deutsch Predaj Oglas (Besplatno!)   Prijava

Realitica oglasi

Traži u Napredno

ZAGREBAČKA, DONJI STUPNIK - Izvrsna investicija – građevinsko zemljište s projektom i dozvolom!

Vrsta: Prodajem Građevinsko Zemljište
Područje: Stupnik
Lokacija: Donji Stupnik
Adresa: Stupnik,Croatia
Cijena: €220.000
Zemljište: 803 m2

Opis: ZAGREBAČKA, DONJI STUPNIK - Izvrsna investicija – građevinsko zemljište s projektom i dozvolom!

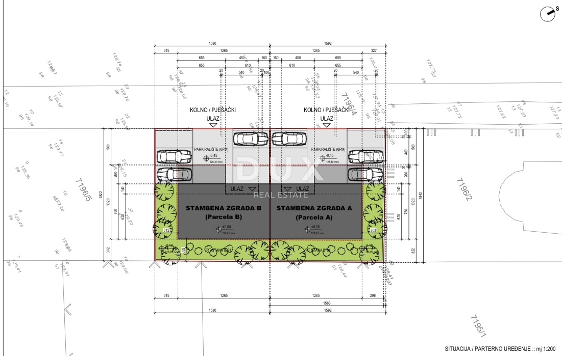
Na prodaju su dvije povezane građevinske parcele ukupne površine 579 m², koje dolaze s ishođenim i pravomoćnim građevinskim dozvolama za izgradnju dviju poluugrađenih stambenih zgrada. Projekt predviđa ukupno šest komfornih stanova, svaki veličine oko 70 m², odnosno ukupno 420 m² neto stambenog prostora. Radi se o projektu koji je spreman za realizaciju odmah, što ovu nekretninu čini idealnom za investitore i sve koji žele izbjeći dugotrajan proces ishođenja dozvola i papirologije.

Uz građevinske čestice, u cijenu je uključeno i dodatnih 224 m² razmjernog suvlasništva u pristupnom putu, čime ukupna površina koja se prenosi u vlasništvo iznosi 803 m². Pristupna cesta je već uređena i funkcionalna; položeni su vodovodni priključci, cijevi za oborinsku odvodnju i priprema za telefonske instalacije. Osim toga, prometnica je završno uređena drobljenim asfaltom, a duž nje su postavljeni stupovi za struju, uključujući i solarnu rasvjetu.

Parcele su smještene na blagoj uzvisini iznad pristupne prometnice, što omogućuje otvoren i neometan pogled prema Sljemenu i Žumberačkoj gori....

Više detalja na: dux-nekretnine.hr/

Registarski broj: 040262912





Oglas Broj: 3678141 (XML-4108-627623)
Postavljeno: 17 Oct, 2025
Zadnja Promjena: 17 Oct, 2025
Tags: Nekretnine Donji Stupnik | Prodaja Građevinskih Zemljišta Donji Stupnik | Nekretnine Stupnik | Prodaja Građevinskih Zemljišta Stupnik

Kontakt Forma



Prijavi Oglašivača

Kliknite na 'Pošalji' ako ovaj oglašivač koristi lažni Booking ili Airbnb ili ako je tražio IBAN uplatu

Šaljemo poruku. Molim pričekajte ...

Vaša poruka je poslana.

Nismo uspjeli poslati poruku. Molim pokušajte ponovno.

Molimo ispunite sva polja u formi.