English Deutsch Predaj Oglas (Besplatno!)   Prijava

Realitica oglasi

Traži u Napredno

JEDNOSOBAN - NOVOGRADNJA - POGLED

Vrsta: Prodajem Stan-Apartman
Područje: Seget
Lokacija: Seget Donji
Adresa: Seget,Croatia
Energetski Razred: Izuzeto od certificiranja
Cijena: €175.000
Spavaćih Soba: 1
Kupatila: 1
Stambena Površina: 50 m2

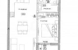
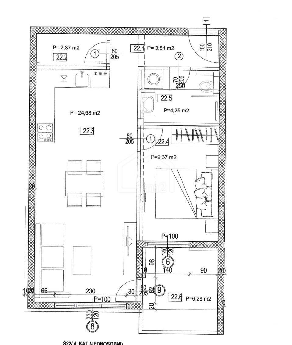
Opis: Posredujemo u prodaji jednosobnog stana u novogradnji na dobroj lokaciji u Segetu Donjem, Trogir. Stambena zgrada se sastoji od prizemlja i četiri kata. Stan se nalazi na drugom katu stambene zgrade, kvadrature 50,76m2. Sastoji se od hodnika, jedne spavaće sobe, kuhinje, blagavaonice, dvenog boravka, ostave, kupaonice i lođe. Stanu pripada i jedno vanjsko parkirno mjesto.

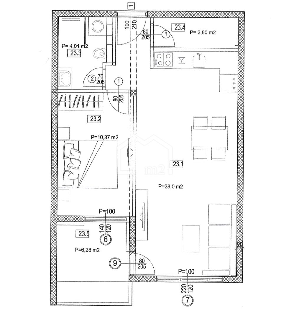
U ponudi imamo i 1- jednosoban stan na trećem katu. Za više informacija i cijene ostalih stanova molim nazovite prodajnog agenta.
Zgrada je južno orijentirana a nalazi se u blizini grada i svih ostalih sadržaja potrebnih za ugodan život te stanovi mogu poslužiti i kao investicija.

Cijenjeni klijenti, razgled nekretnine moguć je isključivo uz potpisani Ugovor o posredovanju, koji je temelj za daljnje radnje vezane za kupoprodaju, a sve sukladno Zakonu o posredovanju u prometu nekretnina i Zakonu o zaštiti podataka.

Kupac plaća proviziju u visini od 2%+PDV od dogovorene kupoprodajne cijene.

Cijena : 175.000 €
Info: +385 91 620 26 35
Mail: info@m2nekretnine.hr

ID KOD AGENCIJE: S1823

Dragana Huskić
Agent
Mob: 091 620 26 35
Tel: +385 21 785 666
E-mail: dragana@m2nekretnine.hr
www.m2nekretnine.hr

Više detalja na: m2nekretnine.hr/

Država oglašivača: HR





Oglas Broj: 3681608 (XML-4154-628815)
Postavljeno: 22 Oct, 2025
Zadnja Promjena: 22 Oct, 2025
Tags: Nekretnine Seget Donji | Prodaja Stanova Seget Donji | Nekretnine Seget | Prodaja Stanova Seget | Apartmani Seget Privatni Smještaj

Kontakt Forma



Prijavi Oglašivača

Kliknite na 'Pošalji' ako ovaj oglašivač koristi lažni Booking ili Airbnb ili ako je tražio IBAN uplatu

Šaljemo poruku. Molim pričekajte ...

Vaša poruka je poslana.

Nismo uspjeli poslati poruku. Molim pokušajte ponovno.

Molimo ispunite sva polja u formi.