English Deutsch Predaj Oglas (Besplatno!)   Prijava

Realitica oglasi

Traži u Napredno

IZGRADNJA ROK JUN-2025 ,40,68m2-prvi sprat! veternička rampa!

Vrsta: Prodajem Stan-Apartman
Područje: Novi Sad
Lokacija: Veternička Rampa
Adresa: Marka Servijskog Veternička rampa, Novi Sad, Srbija
Cena: €87.990
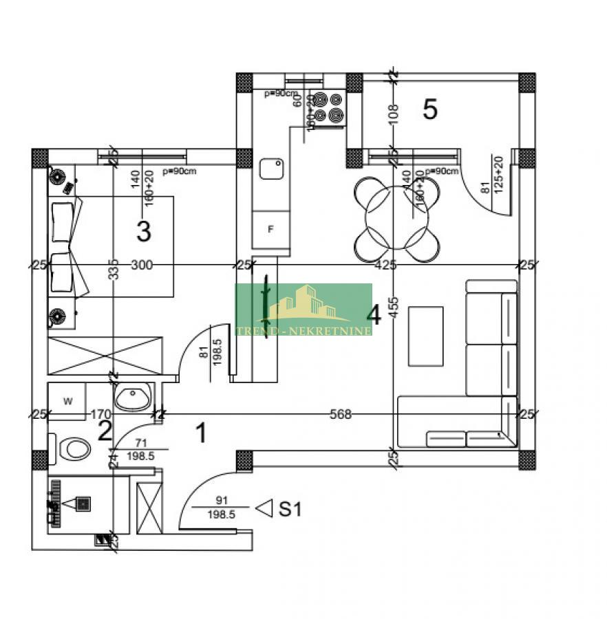
Stambena Površina: 40 m2

Opis: -izgradnja P+1+pk..rok završetka JUN-2025Gg.
-stambena zgrada koja je u izgradnji, zgrada sa dva ulaza,u svakom ulazu ima po 5 st.jedinica.-
- dvosoban stan 40,68m2 na prvom spratu..cena je sa PDV-om!
-U stanovima je ugtrađeno podno grejanje -toplotne pumpe,tarket parket,geberit ugradni vovokotlići,špenska keramika,staklena tuš kabina sa širokim podnim slivnikom,10cm.fasada,3cm.termo-zvučna izolacija na podovima,šestokomorna PVC-stolarija sa roletnama,sigurnosna ulazna vrata,staklene ograde na roletnama..
U ceni je uračunato jedno parking mesto..
Dodatna parking mesta 4000e
Može i putem st.kredita ( 30% učešće)

Više detalja na: trendnekretnine.com/

Registarski broj: 888





Oglas Broj: 3681613 (1307)
Postavljeno: 22 Oct, 2025
Zadnja Promena: 22 Oct, 2025
Tags: Nekretnine Veternička Rampa | Prodaja Stanova Veternička Rampa | Nekretnine Novi Sad | Prodaja Stanova Novi Sad | Apartmani Novi Sad Privatni Smještaj

Kontakt Forma



Prijavi Oglašivača

Kliknite na 'Pošalji' ako ovaj oglašivač koristi lažni Booking ili Airbnb ili ako je tražio IBAN uplatu

Šaljemo poruku. Molim pričekajte ...

Vaša poruka je poslana.

Nismo uspjeli poslati poruku. Molim pokušajte ponovno.

Molimo ispunite sva polja u formi.