English Deutsch Predaj Oglas (Besplatno!)   Prijava

Realitica oglasi

Traži u Napredno

Prodajem Stan-Apartman, Momišići, Podgorica, €112.200

Vrsta: Prodajem Stan-Apartman
Područje: Podgorica
Lokacija: Momišići
Cijena: €112.200
Spavaćih Soba: 1

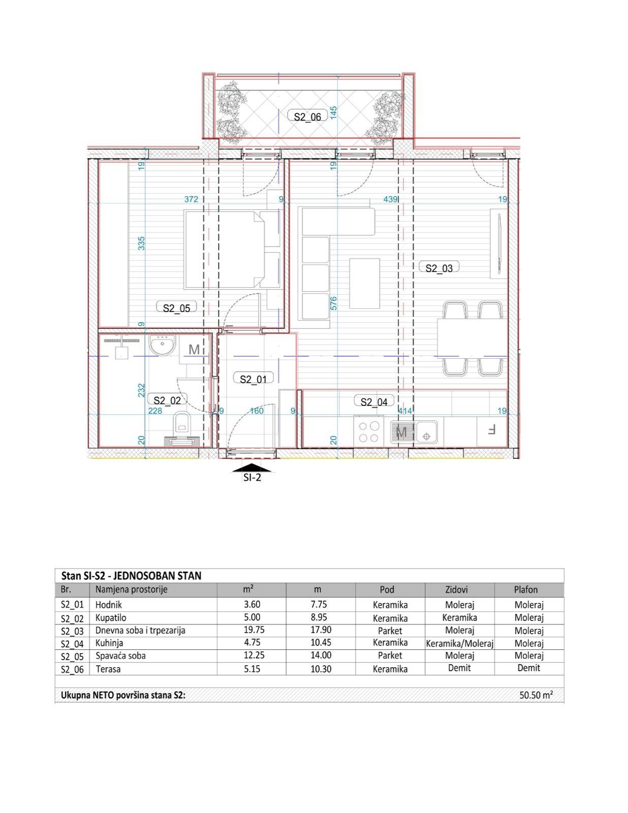
Opis: Na prodaju je jednosoban stan površine 51 m², smešten u novom stambenom objektu u izgradnji, u naselju Momišići u Podgorici. Stan se nalazi na prvom spratu zgrade koja je trenutno u fazi izgradnje, a planirani završetak radova je decembar 2026. godine.

Ova novogradnja odlikuje se savremenim arhitektonskim rešenjem, kvalitetnom gradnjom i pažljivo biranim materijalima, što garantuje dugotrajnost i udobnost. Zgrada je projektovana prema najvišim standardima moderne gradnje i energetske efikasnosti.

Prostran dnevni boravak sa kuhinjom i trpezarijom

Stan je idealan za porodično stanovanje, ali i kao investicija za izdavanje, s obzirom na odličnu lokaciju u jednom od najtraženijih delova Podgorice.

Kupac je oslobođen plaćanja poreza na promet nekretnina (3%), što ovu ponudu čini dodatno povoljnom i atraktivnom.

#Podgorica #Momišići #ProdajaStanova #Novogradnja #StanPodgorica #Investicija #NekretnineCrnaGora #RealEstateMontenegro #AmforaRealEstate #ProdajaNekretnina #BuduciDom #KupovinaStana #BezPoreza #NewBuildingPodgorica #MontenegroRealEstate

Više detalja na: amforaproperty.com/me/det...

Država oglašivača: ME





Oglas Broj: 3682777
Postavljeno: 23 Oct, 2025
Zadnja Promjena: 23 Oct, 2025
Tags: Nekretnine Momišići | Prodaja Stanova Momišići | Nekretnine Podgorica | Prodaja Stanova Podgorica | Apartmani Podgorica Privatni Smještaj

Kontakt Forma



Prijavi Oglašivača

Kliknite na 'Pošalji' ako ovaj oglašivač koristi lažni Booking ili Airbnb ili ako je tražio IBAN uplatu

Šaljemo poruku. Molim pričekajte ...

Vaša poruka je poslana.

Nismo uspjeli poslati poruku. Molim pokušajte ponovno.

Molimo ispunite sva polja u formi.