English Deutsch Predaj Oglas (Besplatno!)   Prijava

Realitica oglasi

Traži u Napredno

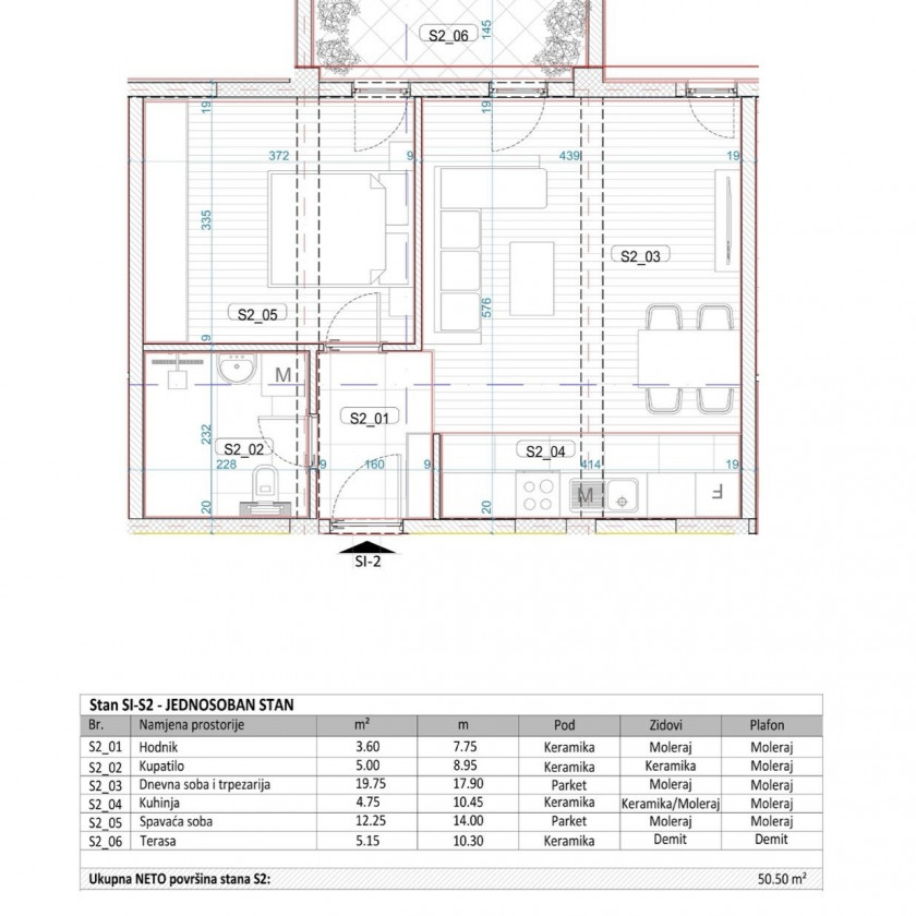
Prodajem Stan-Apartman, Momišići

Vrsta: Prodajem Stan-Apartman
Područje: Podgorica
Lokacija: Momišići
Cijena: €112.200
Godina Gradnje: 2026
Spavaćih Soba: 1
Kupatila: 1
Stambena Površina: 51 m2
Novogradnja
Klima Uređaj

Opis: Prodaje se jednosoban stan 51m2 u novoizgradjenom objektu u Momišićima.
Kraj radova očekivan u decembru 2026.
Stan se nalazi na prvom spratu
Kupac oslobodjena placanja poreza od 3%

Cijena 2200€m2

Za vise informacija kontaktirajte nas

Država oglašivača: ME





Oglas Broj: 3682799
Postavljeno: 23 Oct, 2025
Zadnja Promjena: 23 Oct, 2025
Tags: Nekretnine Momišići | Prodaja Stanova Momišići | Nekretnine Podgorica | Prodaja Stanova Podgorica | Apartmani Podgorica Privatni Smještaj

Kontakt Forma



Prijavi Oglašivača

Kliknite na 'Pošalji' ako ovaj oglašivač koristi lažni Booking ili Airbnb ili ako je tražio IBAN uplatu

Šaljemo poruku. Molim pričekajte ...

Vaša poruka je poslana.

Nismo uspjeli poslati poruku. Molim pokušajte ponovno.

Molimo ispunite sva polja u formi.