English Deutsch Predaj Oglas (Besplatno!)   Prijava

Realitica oglasi

Traži u Napredno

Jednosoban stan u novoj zgradi, Momišići

Vrsta: Prodajem Stan-Apartman
Područje: Podgorica
Lokacija: Momišići
Adresa: Momišići
Energetski Razred: A+
Cijena: €112.200
Godina Gradnje: 2026
Spavaćih Soba: 1
Kupatila: 1
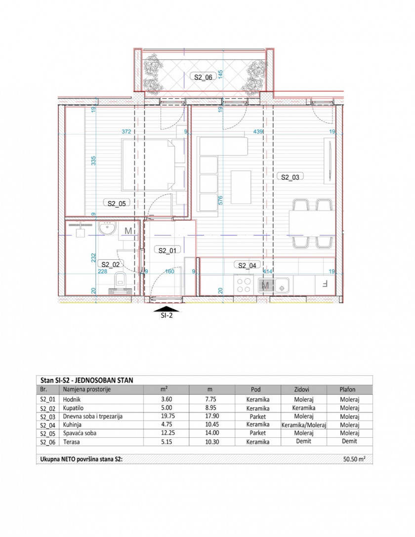
Stambena Površina: 51 m2
Novogradnja

Opis: Prodaje se jednosoban stan u Momišićima, na prvom spratu. Zgrada je započeta i rok završetka je decembar 2026. Kvadratura stana je 51m2. Kupac je oslobođen plaćanja prevoda prilikom kupovine nekretnine. Cijena 2200€/m2
Za katalog i više info na upit.

Država oglašivača: ME





Oglas Broj: 3682937
Postavljeno: 23 Oct, 2025
Zadnja Promjena: 23 Oct, 2025
Tags: Nekretnine Momišići | Prodaja Stanova Momišići | Nekretnine Podgorica | Prodaja Stanova Podgorica | Apartmani Podgorica Privatni Smještaj

Kontakt Forma



Prijavi Oglašivača

Kliknite na 'Pošalji' ako ovaj oglašivač koristi lažni Booking ili Airbnb ili ako je tražio IBAN uplatu

Šaljemo poruku. Molim pričekajte ...

Vaša poruka je poslana.

Nismo uspjeli poslati poruku. Molim pokušajte ponovno.

Molimo ispunite sva polja u formi.