English Deutsch Predaj Oglas (Besplatno!)   Prijava

Realitica oglasi

Traži u Napredno

DRVENIK - Jednosoban stan u blizini mora S5

Vrsta: Prodajem Stan-Apartman
Područje: Gradac
Lokacija: Drvenik
Adresa: Gradac,Croatia
Energetski Razred: A
Cijena: €208.400
Spavaćih Soba: 1
Kupatila: 1
Stambena Površina: 52 m2

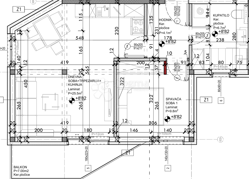
Opis: JEDNOSOBAN STAN – NOVOGRADNJA DRVENIK

Na prodaju je jednosoban stan u novogradnji u Drveniku, u sklopu Stambene zgrade 2 (gornja), smještene ispod Jadranske magistrale u mirnom dijelu mjesta.

Stan se nalazi u modernoj zgradi s liftom, koja se gradi po najvišim standardima gradnje, a svaki apartman ima pogled na more.

Površina stana iznosi 52,10 m², a sastoji se od:

dnevnog boravka s blagovaonicom i kuhinjom

jedne spavaće sobe

kupaonice

hodnika

balkona površine 7 m²

Stan je idealan za miran obiteljski život, odmor ili turistički najam.

Zgrada će biti opremljena:...

Više detalja na: dogma-nekretnine.com/






Oglas Broj: 3683675 (XML-4002-125537)
Postavljeno: 24 Oct, 2025
Zadnja Promjena: 24 Oct, 2025
Tags: Nekretnine Drvenik | Prodaja Stanova Drvenik | Nekretnine Gradac | Prodaja Stanova Gradac | Apartmani Gradac Privatni Smještaj

Kontakt Forma



Prijavi Oglašivača

Kliknite na 'Pošalji' ako ovaj oglašivač koristi lažni Booking ili Airbnb ili ako je tražio IBAN uplatu

Šaljemo poruku. Molim pričekajte ...

Vaša poruka je poslana.

Nismo uspjeli poslati poruku. Molim pokušajte ponovno.

Molimo ispunite sva polja u formi.