🇬🇧 🇩🇪 📝 Predaj Oglas (Besplatno!)   Prijava

Realitica oglasi

Traži u Napredno

PAG, MANDRE - Moderna novogradnja 80 metara od plaže! S7

Vrsta: Prodajem Stan-Apartman
Područje: Kolan
Lokacija: Mandre
Adresa: Kolan,Croatia
Cijena: €393.040
Spavaćih Soba: 3
Kupatila: 2
Stambena Površina: 98 m2

Opis: PAG, MANDRE - Moderna novogradnja 80 metara od plaže! S7

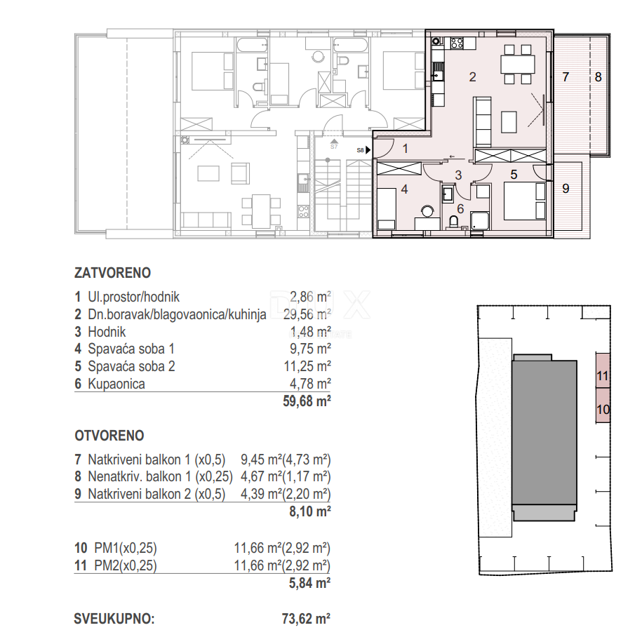
Prodaje se atraktivan stan S7 u novogradnji smještenoj u Mandrama, samo 80 metara od prekrasne plaže. Zgrada sadrži ukupno osam modernih stanova, građenih s naglaskom na kvalitetu, udobnost i suvremeni stil života.

Stan S7 nalazi se na drugom katu te se sastoji od tri spavaće sobe, dvije kupaonice s podnim grijanjem, prostranog dnevnog boravka s kuhinjom i blagovaonicom te natkrivene terase s pogledom na more idealne za opuštanje u toplim ljetnim večerima. Stanu pripadaju i dva parkirna mjesta.

Ova novogradnja predstavlja savršen spoj modernog dizajna i mediteranskog šarma – idealna za odmor, ali i kao investicija za najam tijekom turističke sezone.

Mandre su slikovito ribarsko mjesto na otoku Pagu, poznato po čistom moru, uređenim plažama i mirnoj atmosferi. Otok Pag oduševljava svojom jedinstvenom prirodom, bogatom gastronomskom ponudom, paškog sira i vina, te autentičnim dalmatinskim duhom.

Za više informacija i razgledavanje ove nekretnine, slobodno nas kontaktirajte – vaš novi dom uz more čeka vas u Mandrama!

Poštovani klijenti, agencijska provizija naplaćuje se u skladu s Općim uvjetima poslovanja:
www....

Više detalja na: dux-nekretnine.hr/

Registarski broj: 040262912





Oglas Broj: 3684259 (XML-4108-629531)
Postavljeno: 25 Oct, 2025
Zadnja Promjena: 25 Oct, 2025
Tags: Nekretnine Mandre | Prodaja Stanova Mandre | Nekretnine Kolan | Prodaja Stanova Kolan | Apartmani Kolan Privatni Smještaj

Kontakt Forma



Prijavi Oglašivača

Kliknite na 'Pošalji' ako ovaj oglašivač koristi lažni Booking ili Airbnb ili ako je tražio IBAN uplatu

Šaljemo poruku. Molim pričekajte ...

Vaša poruka je poslana.

Nismo uspjeli poslati poruku. Molim pokušajte ponovno.

Molimo ispunite sva polja u formi.