English Deutsch Predaj Oglas (Besplatno!)   Prijava

Realitica oglasi

Traži u Napredno

Prodajem Stan-Apartman, Zabjelo

Vrsta: Prodajem Stan-Apartman
Područje: Podgorica
Lokacija: Zabjelo
Cijena: €50.000
Stambena Površina: 25 m2

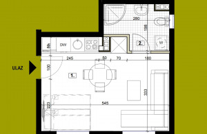
Opis: Garsonjera, u izgradnji, površine 25m2, Zabjelo, jugozapadno orijentisana, pruža sve što Vam je potrebno za ugodan život. Veliki prozori ispunjavaju prostor prirodnim svijetlom, a funkcionalan raspored omogućava udoban boravak i rad. Kvalitetni materijali i pažljivo osmišljen dizajn čine ovu garsonjeru savršenim izborom za udoban život ili izdavanje.
Zgrada posjeduje lift i manji javni parking.
Garsonjera je dostupna na prizemlju, 2. spratu i potkrovlju zgrade.

Rok za završetak radova je oktobar 2025. godine.

Više detalja na: freshestate.me/nekretnine...

Registarski broj: www.freshestate.me
Država oglašivača: ME





Oglas Broj: 3686403
Postavljeno: 28 Oct, 2025
Zadnja Promjena: 28 Oct, 2025
Tags: Nekretnine Zabjelo | Prodaja Stanova Zabjelo | Nekretnine Podgorica | Prodaja Stanova Podgorica | Apartmani Podgorica Privatni Smještaj

Kontakt Forma



Prijavi Oglašivača

Kliknite na 'Pošalji' ako ovaj oglašivač koristi lažni Booking ili Airbnb ili ako je tražio IBAN uplatu

Šaljemo poruku. Molim pričekajte ...

Vaša poruka je poslana.

Nismo uspjeli poslati poruku. Molim pokušajte ponovno.

Molimo ispunite sva polja u formi.