English Deutsch Predaj Oglas (Besplatno!)   Prijava

Realitica oglasi

Traži u Napredno

Prodajem Stan-Apartman, Momišići

Vrsta: Prodajem Stan-Apartman
Područje: Podgorica
Lokacija: Momišići
Energetski Razred: A+
Cijena: €112.000
Godina Gradnje: 2026
Spavaćih Soba: 1
Kupatila: 1
Stambena Površina: 51 m2
Novogradnja

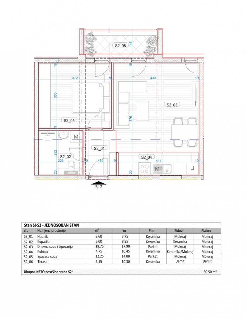
Opis: Na prodaju jednosoban stan u izgradnji, površine 51 m², smješten na prvom spratu u modernoj zgradi u Momišićima, Podgorica.
Stan se sastoji od dnevne sobe sa kuhinjom i trpezarijom, jedne spavaće sobe, kupatila i balkona.
Zgrada posjeduje lift i projektovana je po savremenim standardima gradnje.
Rok završetka radova: decembar 2026. godine.
Cijena: 2.200 €/m²
Ukupna cijena: 112.200 €

Pogodno za stanovanje ili investiciju.

Kontakt:
Popović Prime Estate
Agencija za nekretnine

📞 +382 68 146 916
📧 prime.estate.pop@gmail.com

📍 Zabjelska Vektra, ulaz 5, Podgorica

Više detalja na: popovicprimeestate.me/pro...

Registarski broj: 03763625
Država oglašivača: ME





Oglas Broj: 3688591
Postavljeno: 30 Oct, 2025
Zadnja Promjena: 30 Oct, 2025
Tags: Nekretnine Momišići | Prodaja Stanova Momišići | Nekretnine Podgorica | Prodaja Stanova Podgorica | Apartmani Podgorica Privatni Smještaj

Kontakt Forma



Prijavi Oglašivača

Kliknite na 'Pošalji' ako ovaj oglašivač koristi lažni Booking ili Airbnb ili ako je tražio IBAN uplatu

Šaljemo poruku. Molim pričekajte ...

Vaša poruka je poslana.

Nismo uspjeli poslati poruku. Molim pokušajte ponovno.

Molimo ispunite sva polja u formi.