🇬🇧 🇩🇪 📝 Predaj Oglas (Besplatno!)   Prijava

Realitica oglasi

Traži u Napredno

Prodajem Stan-Apartman, Braće Jerković, Beograd Grad

Vrsta: Prodajem Stan-Apartman
Područje: Voždovac
Lokacija: Braće Jerković
Adresa: Braće Jerković, Piva Karamatijevića, 3.0, uknjižen, mali troškovi
Cena: €144.900
Spavaćih Soba: 2
Kupatila: 1
Stambena Površina: 55 m2
Klima Uređaj
Čuvajte se prevara: NE vršite IBAN uplate

Opis: U naselju Braće Jerković, planski građenom u periodu od 1970. do 1980. godine, zgrade su podizane po urbanističkom planu koji je pratio liniju terena.

Karakteristično su stepenaste, sa prizemljem, visokim prizemljem i tri sprata, okružene zelenilom i širokim bulevarima.

U tom delu naselja, na poslednjem spratu zgrade sa odličnom krovnom izolacijom, nalazi se stan površine 55 m², potpuno zapadno orijentisan, svetao i topao tokom cele godine.

Stan je izuzetne gradnje, sa debljim zidovima i odličnom izolacijom, što donosi male mesečne troškove.

Lođa je dodatno građena i zatvorena aluminijumskom stolarijom, čime je povezana sa dnevnim boravkom i dobija se komforan, ušuškan prostor.

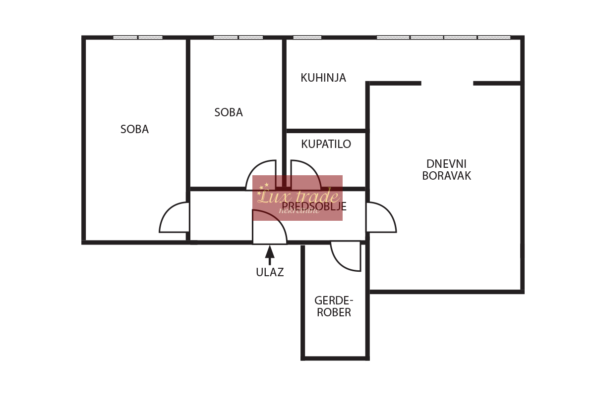
Raspored: dve spavaće sobe, dnevni boravak, lođa, ostava, kupatilo i kuhinja sa lođom.

Kuhinja je moderna, sa svom belom tehnikom i kvalitetnim elementima.

Zadržana je kaljeva peć koja prostoru daje toplinu i šarm, uz dodatno postavljene norveške radijatore.

Ispred zgrade zelenilo i uvek dovoljno parking mesta.

U blizini su pijaca, škola i marketi.

Komšiluk je miran, većinom mlade porodice, a zgrade održavane i uredne.
...

Više detalja na: luxtrade.co.rs

Registarski broj: 029
Upozorenje: Račun nije verificiran.





Oglas Broj: 3688759
Postavljeno: 30 Oct, 2025
Zadnja Promena: 3 Dec, 2025
Tags: Nekretnine Braće Jerković | Prodaja Stanova Braće Jerković | Nekretnine Voždovac | Prodaja Stanova Voždovac | Nekretnine Beograd | Prodaja Stanova Beograd | Apartmani Voždovac Privatni Smještaj | Apartmani Beograd Privatni Smještaj

Kontakt Forma



Prijavi Oglašivača

Kliknite na 'Pošalji' ako ovaj oglašivač koristi lažni Booking ili Airbnb ili ako je tražio IBAN uplatu

Šaljemo poruku. Molim pričekajte ...

Vaša poruka je poslana.

Nismo uspjeli poslati poruku. Molim pokušajte ponovno.

Molimo ispunite sva polja u formi.