English Deutsch Predaj Oglas (Besplatno!)   Prijava

Realitica oglasi

Traži u Napredno

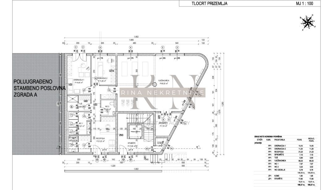
Moderan poslovni prostor 146,56 m² uz magistralu Poreč

Vrsta: Prodajem Poslovni Prostor
Područje: Poreč
Lokacija: Poreč
Adresa: Poreč,Croatia
Energetski Razred: Izuzeto od certificiranja
Cijena: €293.120
Kupatila: 1
Stambena Površina: 146 m2

Opis: ISTRA – POREČ | Poslovni prostor 146,56 m² u novogradnji – izvrsna i frekventna lokacija uz magistralu
Na prodaju je moderan poslovni prostor površine 146,56 m², smješten u novogradnji u blizini Poreča, na izuzetno frekventnoj i vidljivoj lokaciji uz glavnu magistralnu cestu koja povezuje Poreč s Novigradom, te dalje prema Sloveniji i Italiji – jedna od najpoželjnijih poslovnih zona u Istri, s izvrsnom prometnom povezanošću s cijelom obalom.
Ova pozicija nudi izvrsnu prometnu povezanost, veliku vidljivost i pristupačnost, što je čini idealnim izborom za investitore i poduzetnike koji traže prostor za ordinaciju, polikliniku, stomatološku praksu, ured ili showroom.
Savršeno mjesto za one koji žele biti vidljivi i dostupni svojim klijentima.

LOKACIJA
Poslovni prostor nalazi se u uređenom urbanom dijelu s potpunom infrastrukturom.
U neposrednoj blizini nalaze se osnovna škola, vrtić, trgovine, restorani, kafići i ljekarna – sve na nekoliko minuta hoda.
Lokacija omogućuje jednostavan pristup i lako parkiranje više vozila, što je velika prednost za poslovanje s većim brojem klijenata....

Više detalja na: rina-nekretnine.hr/

Država oglašivača: HR





Oglas Broj: 3693283 (XML-4180-632606)
Postavljeno: 5 Nov, 2025
Zadnja Promjena: 5 Nov, 2025
Tags: Nekretnine Poreč | Prodaja Poslovnih Prostora Poreč

Kontakt Forma



Prijavi Oglašivača

Kliknite na 'Pošalji' ako ovaj oglašivač koristi lažni Booking ili Airbnb ili ako je tražio IBAN uplatu

Šaljemo poruku. Molim pričekajte ...

Vaša poruka je poslana.

Nismo uspjeli poslati poruku. Molim pokušajte ponovno.

Molimo ispunite sva polja u formi.