English Deutsch Predaj Oglas (Besplatno!)   Prijava

Realitica oglasi

Traži u Napredno

Centar, Dalmatinska, Penthaus, 4.0, 199,31m2 novogradnja

Vrsta: Prodajem Stan-Apartman
Područje: Palilula
Lokacija: Palilula
Adresa: Beograd, Dalmatinska
Cena: €1.085.243
Godina Gradnje: 2027
Spavaćih Soba: 3
Kupatila: 1
Stambena Površina: 199 m2
Novogradnja
Klima Uređaj
Čuvajte se prevara: NE vršite IBAN uplate

Opis: Na mestu gde se Dalmatinska ulica i Ulica Stanoja Glavaša sastaju, na jednoj od najatraktivnijih lokacija na opštini Palilula, Kompanija "Graditelj-inženjering" gradi stambeno-poslovni objekat Prime Square .
Lokacija je idealna za one koji žele okruženje bogato urbanim sadržajima.
Lokacija stambeno-poslovnog objekta Prime Square vam omogućava izuzetno dobru povezanost sa najvažnijim pravcima u gradu, pre svega zahvaljujući Takovskoj i Cvijićevoj ulici u blizini.
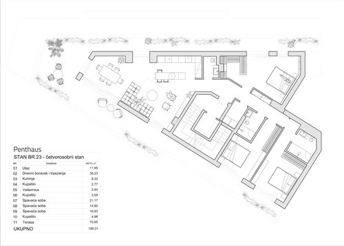
U okviru Prime Square objekta u ponudi je Penthaus(četvorosobni) od 199,31m2 po ceni od 1.085.243 € (4.950€/m2+pdv) na povučenom(VII) spratu
Oprema stanova obuhvata Bosal sigurnosna ulazna vrata, unutrašnja stolarija Bosal Integra, spoljna fasadna aluminarija Reynaers, hrastove podne obloge Weitzer Parkett, keramika Florim, sanitarije Catalano, baterije Gessi, grejanje vode Ariston, podno grejanje Mitsubishi Ecodan toplotne pumpe(oprema može da bude drugih proizvođača u istoj kategoriji)
Građevinska dozvola, rok za završetak radova 15.10.2027.
U okviru garaže dostupna su 33 parking mesta raspoređena u suterenu i tri podzemna nivoa.

Kompanija "Graditelj-inženjering" doo
+381 11 355 16 55
+381 63 430 830
office@graditelj-inzenjering.co.rs

CBRE - Ekskluzivni zastupnik prodaje (kupac ne plaća posredničku proviziju)
+381 60 88 22 000
prodaja@cbre.com

Upozorenje: Račun nije verificiran.





Oglas Broj: 3696439
Postavljeno: 8 Nov, 2025
Zadnja Promena: 8 Nov, 2025
Tags: Nekretnine Palilula | Prodaja Stanova Palilula | Nekretnine Beograd | Prodaja Stanova Beograd | Apartmani Palilula Privatni Smještaj | Apartmani Beograd Privatni Smještaj

Kontakt Forma



Prijavi Oglašivača

Kliknite na 'Pošalji' ako ovaj oglašivač koristi lažni Booking ili Airbnb ili ako je tražio IBAN uplatu

Šaljemo poruku. Molim pričekajte ...

Vaša poruka je poslana.

Nismo uspjeli poslati poruku. Molim pokušajte ponovno.

Molimo ispunite sva polja u formi.