🇬🇧 🇩🇪 📝 Predaj Oglas (Besplatno!)   Prijava

Realitica oglasi

Traži u Napredno

Prodajem Zemljište, Višnjan, €137.500

Vrsta: Prodajem Zemljište
Područje: Višnjan
Lokacija: Višnjan
Cijena: €137.500
Zemljište: 552 m2

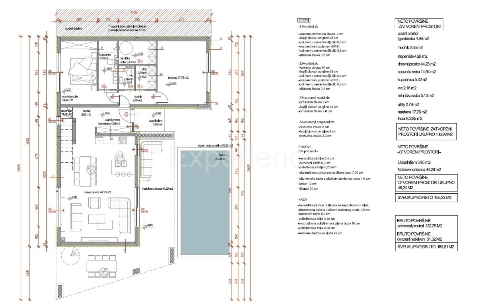
Opis: U okolici Višnjana, u iznimno mirnom ambijentu na prodaji je građevinsko zemljište, površine 552 m². Zemljište se nalazi u tipičnom istarskom selu sa svega nekoliko kuća, na rubu građevinske zone. Teren je ravan, uzvišen, te pruža otvoreni panoramski pogled na okolna brda.
 
Ishodovana je građevinska dozvola i plaćene su komunalije za izgradnju dvojne obiteljske kuće sa bazenom, ukupne neto površine 223 m². Plaćene su komunalije u iznosu od 7.000 €. Započeta je izgradnja, izgrađeni su temelji.
 
Priključci za struju i vodu nalaze se uz parcelu.
 
U navedenoj cijeni uključen je PDV u iznosu od 25%.

Više detalja na: realty-croatia.com

Država oglašivača: HR





Oglas Broj: 3698847 (2458)
Postavljeno: 12 Nov, 2025
Zadnja Promjena: 12 Dec, 2025
Tags: Nekretnine Višnjan | Prodaja Zemljišta Višnjan

Kontakt Forma



Prijavi Oglašivača

Kliknite na 'Pošalji' ako ovaj oglašivač koristi lažni Booking ili Airbnb ili ako je tražio IBAN uplatu

Šaljemo poruku. Molim pričekajte ...

Vaša poruka je poslana.

Nismo uspjeli poslati poruku. Molim pokušajte ponovno.

Molimo ispunite sva polja u formi.