English Deutsch Predaj Oglas (Besplatno!)   Prijava

Realitica oglasi

Traži u Napredno

Prodajem Stan-Apartman, Centar, Gornji Grad-Medveščak, Zagreb Grad, €550.000

Vrsta: Prodajem Stan-Apartman
Područje: Gornji Grad-Medveščak
Lokacija: Centar
Cijena: €550.000
Spavaćih Soba: 2
Kupatila: 2
Stambena Površina: 95 m2

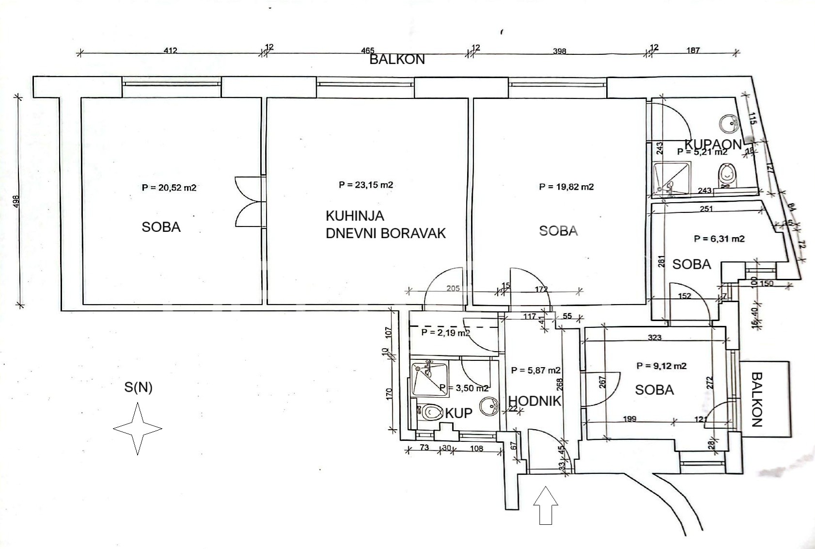
Opis: PRODAJA, STAN, ZAGREB, CENTAR, TKALČIĆEVA KOD TRGA. Lijep, prostran i svijetao 3,5soban stan od 95m2 u reprezentativnoj zgradi hrvatske moderne iz 1931. (prema projektu arhitekta Aladara Baranyaija). Stan se nalazi na 3. katu u zgradi s liftom, a sastoji se od ulaznog hodnika, dnevnog boravka s kuhinjom i blagovanjem, dvije veće sobe, jedne manje sa spremištem/walk in ormarom, 2 kupaonice i balkona. Kompletno renoviran 2018. Na zgradi su obnovljeni krov i sve instalacije, a u najavi je obnova fasade. Zgrada je čvrsta i postojana; ima betonsku međukonstrukciju, a nakon nedavnih potresa je dobila "zelenu naljepnicu". Jedinstvena nekretnina u najužem centru grada! Preporuka agencije!

Više detalja na: opereta.hr/






Oglas Broj: 3698995 (I33902)
Postavljeno: 12 Nov, 2025
Zadnja Promjena: 12 Nov, 2025
Tags: Nekretnine Centar Gornji Grad Medveščak | Prodaja Stanova Centar Gornji Grad Medveščak | Nekretnine Gornji Grad Medveščak | Prodaja Stanova Gornji Grad Medveščak | Nekretnine Zagreb | Prodaja Stanova Zagreb | Apartmani Gornji Grad Medveščak Privatni Smještaj | Apartmani Zagreb Privatni Smještaj

Kontakt Forma



Prijavi Oglašivača

Kliknite na 'Pošalji' ako ovaj oglašivač koristi lažni Booking ili Airbnb ili ako je tražio IBAN uplatu

Šaljemo poruku. Molim pričekajte ...

Vaša poruka je poslana.

Nismo uspjeli poslati poruku. Molim pokušajte ponovno.

Molimo ispunite sva polja u formi.