🇬🇧 🇩🇪 📝 Predaj Oglas (Besplatno!)   Prijava

Realitica oglasi

Traži u Napredno

Jednosoban stan D1-S15

Vrsta: Prodajem Stan-Apartman
Područje: Omiš
Lokacija: Omiš
Adresa: Omiš,Croatia
Cijena: €288.144
Spavaćih Soba: 1
Kupatila: 1
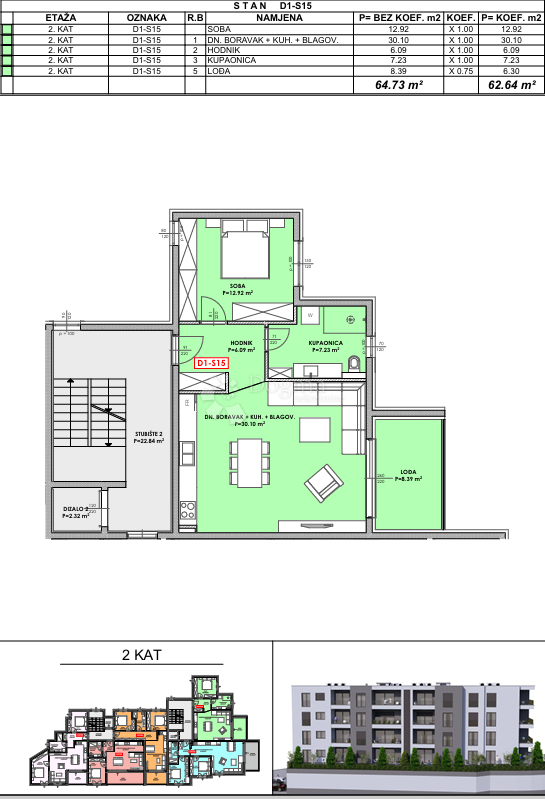
Stambena Površina: 62 m2

Opis: Jednosoban Stan u Nemiri – Samo 150 m od Plaže

U prodaji je komforan jednosoban stan smješten u prizemlju nove moderne zgrade u mirnom dijelu Nemire, svega 150 metara od predivnih šljunčanih plaža.
Ovaj stan nudi idealan spoj udobnosti, luksuza i blizine mora – savršen za život, odmor ili kao investicija.

Površina:

Neto: 62,64 m²

Raspored prostorija:
Stan se sastoji od prostranog dnevnog boravka povezanog s kuhinjom i blagovaonicom, jedne udobne spavaće sobe, modernog kupatila i hodnika.
Opremljen je vrhunskim materijalima i dizajnom koji odiše elegancijom i ugodom.

Zeleni pojas oko zgrade dodatno doprinosi privatnosti i miru, stvarajući savršen ambijent za svakodnevni život.

Lokacija:
Nemira je poznata po kristalno čistom moru, borovim šumama i predivnim plažama. U neposrednoj blizini nalaze se Omiš i Split, što omogućuje brz pristup svim gradskim sadržajima, restoranima i kulturnim događanjima.

Okolica pruža brojne mogućnosti za aktivan odmor – rafting i zip-line na rijeci Cetini, planinarenje te izlete brodom na otoke Brač i Hvar.

Dodatne mogućnosti:...

Više detalja na: dogma-nekretnine.com/list...






Oglas Broj: 3700702 (XML-4002-126990)
Postavljeno: 14 Nov, 2025
Zadnja Promjena: 14 Nov, 2025
Tags: Nekretnine Omiš | Prodaja Stanova Omiš | Apartmani Omiš Privatni Smještaj

Kontakt Forma



Prijavi Oglašivača

Kliknite na 'Pošalji' ako ovaj oglašivač koristi lažni Booking ili Airbnb ili ako je tražio IBAN uplatu

Šaljemo poruku. Molim pričekajte ...

Vaša poruka je poslana.

Nismo uspjeli poslati poruku. Molim pokušajte ponovno.

Molimo ispunite sva polja u formi.