English Deutsch Predaj Oglas (Besplatno!)   Prijava

Realitica oglasi

Traži u Napredno

Prodajem Stan-Apartman, Trogir-Čiovo, €179.000

Vrsta: Prodajem Stan-Apartman
Područje: Trogir-Čiovo
Cijena: €179.000
Spavaćih Soba: 2
Kupatila: 1
Stambena Površina: 57 m2

Opis: Dvosoban stan u novogradnji – Trogir, 900 m od centra
Savršen stan za obiteljski život, turistički najam ili investiciju! Smješten na mirnoj lokaciji u blizini UNESCO-ovog Trogira, ovaj moderni stan u novogradnji nudi kvalitetnu gradnju, natkrivenu terasu i parkirno mjesto uključeno u cijenu. Blizina škole, vrtića, trgovine i plaže čini ga idealnim za obitelj ili odmor. Useljenje je predviđeno krajem 2026., a plaćanje je moguće u fazama.
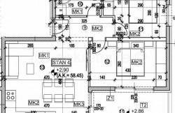
Stan (S4) sastoji se od:

Kuhinja, blagovaonica i dnevni boravak – 21,62 m²

Predsoblje – 4,11 m²

Spavaća soba 1 – 11,34 m²

Spavaća soba 2 – 9,21 m²

Kupaonica – 4,11 m²

Natkrivena terasa – 7,56 m²

Ukupna površina: 57,94 m²

Više detalja na: ibs-nekretnine.hr






Oglas Broj: 3700766 (4668)
Postavljeno: 14 Nov, 2025
Zadnja Promjena: 14 Nov, 2025
Tags: Nekretnine Trogir Čiovo | Prodaja Stanova Trogir Čiovo | Apartmani Trogir Čiovo Privatni Smještaj

Kontakt Forma



Prijavi Oglašivača

Kliknite na 'Pošalji' ako ovaj oglašivač koristi lažni Booking ili Airbnb ili ako je tražio IBAN uplatu

Šaljemo poruku. Molim pričekajte ...

Vaša poruka je poslana.

Nismo uspjeli poslati poruku. Molim pokušajte ponovno.

Molimo ispunite sva polja u formi.