English Deutsch Predaj Oglas (Besplatno!)   Prijava

Realitica oglasi

Traži u Napredno

ŽDRILO -građevinsko zemljište od 374 m2 s projektom i građevinskom dozvolom!!

Vrsta: Prodajem Građevinsko Zemljište
Područje: Posedarje
Lokacija: Posedarje
Adresa: Posedarje,Croatia
Cijena: €95.000
Zemljište: 375 m2

Opis: ŽDRILO - GRAĐEVINSKO ZEMLJIŠTE OD 374 m2 S PROJEKTOM I DOZVOLOM !!

Na prodaju je atraktivno građevinsko zemljište smješteno u mirnom priobalnom mjestu Ždrilo, udaljeno svega 1,5 – 2 km od mora, sa važećom građevinskom dozvolom i potpuno pripremljenom gradilišnom infrastrukturom, što omogućava odmah započinjanje gradnje bez dodatnih čekanja i ulaganja u pripremu terena.
Zemljište dolazi s gotovim projektom moderne obiteljske kuće s bazenom, što kupcu pruža savršenu priliku za izgradnju privatne vile za odmor, turističkog objekta ili trajnog stanovanja.

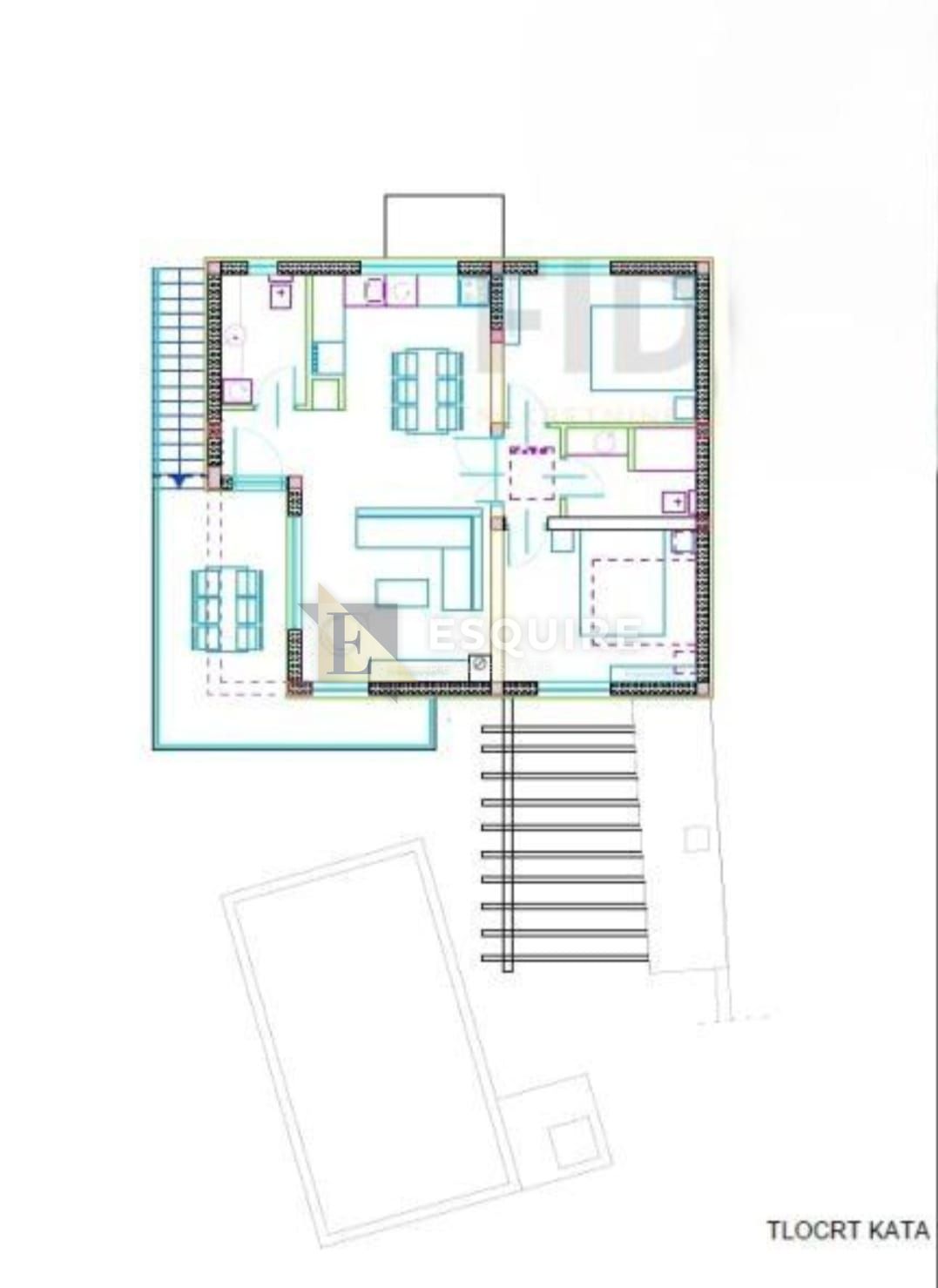
OPIS PROJEKTA (PRIZEMLJE + KAT + BAZEN)
Planirana kuća je moderno projektirani objekt s naglaskom na funkcionalnost i životni komfor, raspoređena na dva kata:
* PRIZEMLJE
Otvoren koncept dnevnog boravka, blagovaonice i kuhinje, s izlazom na terasu
Spavaća soba / multifunkcionalna soba
Kupaonica
Direktan pristup velikoj terasi i bazenu
Vanjski prostor predviđen za lounge zonu i roštilj
* KAT
Dodatni dnevni boravak ili prostor za druženje
2 spavaće sobe
Kupaonica
Izlaz na prostranu natkrivenu terasu/balkon
* VANJSKI PROSTOR
Privatni bazenski kompleks
Sunčalište s drvenim deckom...

Više detalja na: esquire.hr/

Država oglašivača: HR





Oglas Broj: 3701808 (XML-4518-635078)
Postavljeno: 16 Nov, 2025
Zadnja Promjena: 16 Nov, 2025
Tags: Nekretnine Posedarje | Prodaja Građevinskih Zemljišta Posedarje

Kontakt Forma



Prijavi Oglašivača

Kliknite na 'Pošalji' ako ovaj oglašivač koristi lažni Booking ili Airbnb ili ako je tražio IBAN uplatu

Šaljemo poruku. Molim pričekajte ...

Vaša poruka je poslana.

Nismo uspjeli poslati poruku. Molim pokušajte ponovno.

Molimo ispunite sva polja u formi.