English Deutsch Predaj Oglas (Besplatno!)   Prijava

Realitica oglasi

Traži u Napredno

Građevinsko zemljište Građevinska parcela s projektom – Valdebek, Pula

Vrsta: Prodajem Građevinsko Zemljište
Područje: Pula
Lokacija: Valdebek
Adresa: Pula, Hrvatska
Energetski Razred: Izuzeto od certificiranja
Cijena: €120.000
Zemljište: 580 m2

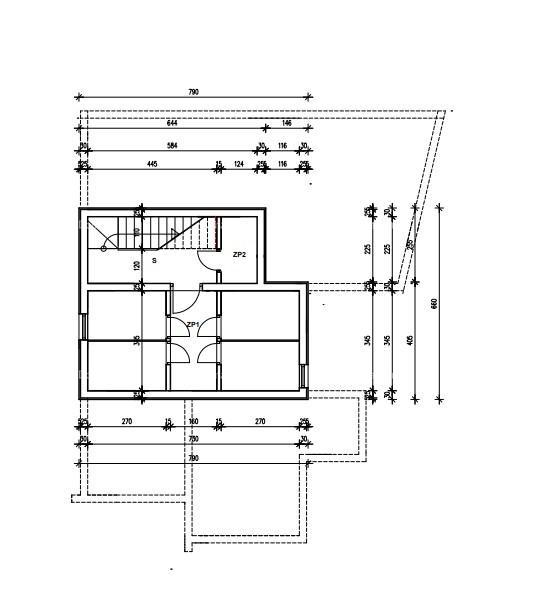
Opis: Prodaje se građevinska parcela s kompletnom infrastrukturom (struja, voda) i gotovim idejnim projektima za zgradu s 4 stambene jedinice, prizemnica s bazenom i hostel.

Prednosti lokacije:

Mirna i atraktivna lokacija
Udaljenost od centra Pule: 2 km
Do mora svega 5 minuta (Verudela, Stoja)

Za više informacija, molimo kontaktirajte:

Azra
+385 91 611 5706
+385 98 420 885
azra@almadominvest.com

Više detalja na: therealestatecroatia.com/...

Država oglašivača: HR





Oglas Broj: 3702622 (23859)
Postavljeno: 18 Nov, 2025
Zadnja Promjena: 18 Nov, 2025
Tags: Nekretnine Valdebek | Prodaja Građevinskih Zemljišta Valdebek | Nekretnine Pula | Prodaja Građevinskih Zemljišta Pula

Kontakt Forma



Prijavi Oglašivača

Kliknite na 'Pošalji' ako ovaj oglašivač koristi lažni Booking ili Airbnb ili ako je tražio IBAN uplatu

Šaljemo poruku. Molim pričekajte ...

Vaša poruka je poslana.

Nismo uspjeli poslati poruku. Molim pokušajte ponovno.

Molimo ispunite sva polja u formi.