English Deutsch Predaj Oglas (Besplatno!)   Prijava

Realitica oglasi

Traži u Napredno

Rijeka, Trsat, vrhunska novogradnja, moderan dvoetažni stan – 126,3 m² + 28m² terasa i balkon

Vrsta: Prodajem Stan-Apartman
Područje: Rijeka
Lokacija: Trsat
Adresa: Trsat, Rijeka, Hrvatska
Cijena: €640.000
Spavaćih Soba: 3
Kupatila: 3
Stambena Površina: 134 m2

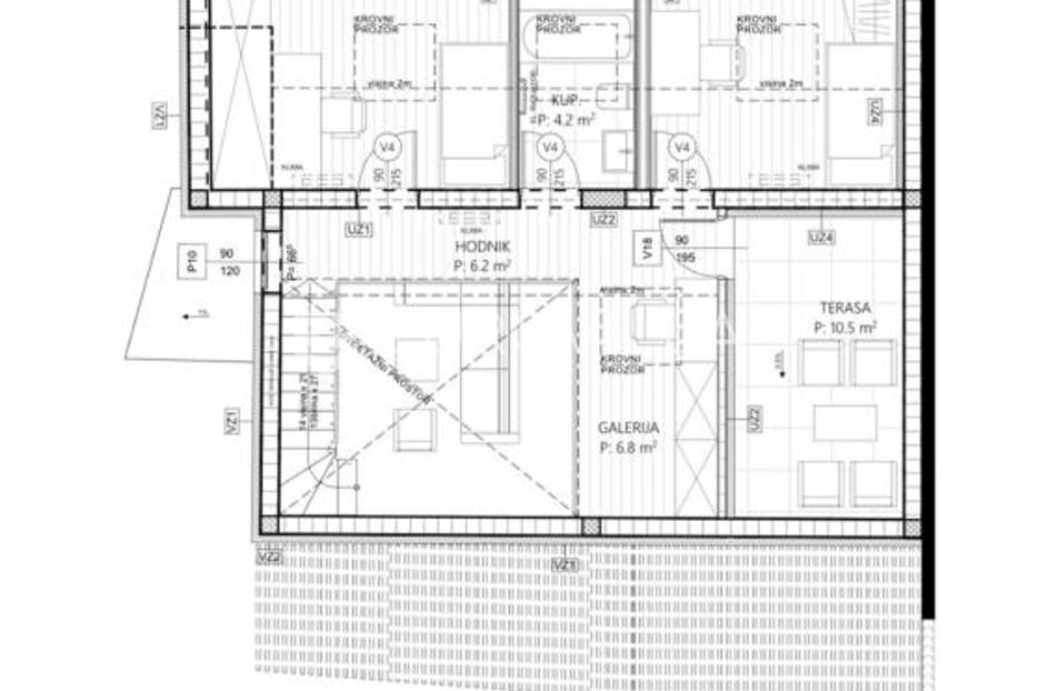
Opis: Prostrani dvoetažni stan smješten u samom centru Trsata, ukupne stambene površine 126,3 m², s dodatnih 28 m² terasa i balkona. Stan se nalazi u stambenoj kući, što osigurava mir, privatnost i osjećaj doma, a istovremeno ste na izvrsnoj lokaciji - u blizini svih važnih sadržaja.Stan se prostire na dvije etaže i sastoji se od tri spavaće sobe, otvorenog dnevnog prostora koji uključuje kuhinju, blagovaonicu i dnevni boravak, dvije kupaonice, dodatnog odvojenog toaleta, garderobe, praonice, spremišta te galerije. Iz dnevnog boravka izlazi se na prostranu terasu površine 14 m², dok se s galerije izlazi na krovnu terasu površine 10 m², potpuno zaštićenu od pogleda - idealnu za opuštanje.Stanu pripadaju tri parkirna mjesta, a opremljen je suvremenim sustavima grijanja i hlađenja - uključujući podno grijanje i dizalicu topline - što jamči visoku energetsku učinkovitost i udobnost kroz cijelu godinu. Ugrađena je vrhunska ALU stolarija te su korišteni visokokvalitetni materijali i sanitarije.Stan je idealan za obiteljski život, ali i kao investicija za najam, zahvaljujući kvaliteti izvedbe i atraktivnoj lokaciji.Za detaljnije informacije slobodno nas kontaktirajte....

Više detalja na: eurovilla.hr/nekretnina/r...






Oglas Broj: 3708895 (596892)
Postavljeno: 27 Nov, 2025
Zadnja Promjena: 27 Nov, 2025
Tags: Nekretnine Trsat | Prodaja Stanova Trsat | Nekretnine Rijeka | Prodaja Stanova Rijeka | Apartmani Rijeka Privatni Smještaj

Kontakt Forma



Prijavi Oglašivača

Kliknite na 'Pošalji' ako ovaj oglašivač koristi lažni Booking ili Airbnb ili ako je tražio IBAN uplatu

Šaljemo poruku. Molim pričekajte ...

Vaša poruka je poslana.

Nismo uspjeli poslati poruku. Molim pokušajte ponovno.

Molimo ispunite sva polja u formi.