English Deutsch Predaj Oglas (Besplatno!)   Prijava

Realitica oglasi

Traži u Napredno

Prodajem Zemljište, Zaton, Nin, €698.625

Vrsta: Prodajem Zemljište
Područje: Nin
Lokacija: Zaton
Cijena: €698.625
Zemljište: 616 m2

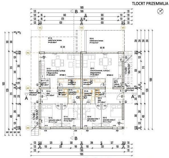
Opis: Zaton (Nin) - na prodaju je građevinsko zemljište 2. red do mora na izvanrednoj lokaciji, okruženo luksuznim vilama i modernim kućama, površine 621 m2.
Zemljište ima pravomoćnu građevinsku dozvolu i projektnu dokumentaciju za izgradnju manje luksuzne zgrade sa četiri dvosobna apartmana – dva apartmana u prizemlju (86,11 m2 i 82,03 m2) te dva na katu (79,33 m2 i 77,79 m2), svaki sa vlastitim ulazom. Svaki apartman imati će pogled na more.
Dimenzije zemljišta: cca. 22 m x 27 m.
PDV je uračunat u kupoprodajnu cijenu te kupnjom ove nekretnine kupac ne plaća porez na promet nekretnina.
Do ovog zemljišta na prodaju su još dva građevinska zemljišta također s pravomoćnom građevinskom dozvolom i projektnom dokumentacijom. 
Kontakt agent:
Sonja Đurasek
+385 95 337 5701

Više detalja na: condura-nekretnine.hr/





Oglas Broj: 3710894 (1806)
Postavljeno: 29 Nov, 2025
Zadnja Promjena: 29 Nov, 2025
Tags: Nekretnine Zaton | Prodaja Zemljišta Zaton | Nekretnine Nin | Prodaja Zemljišta Nin

Kontakt Forma



Prijavi Oglašivača

Kliknite na 'Pošalji' ako ovaj oglašivač koristi lažni Booking ili Airbnb ili ako je tražio IBAN uplatu

Šaljemo poruku. Molim pričekajte ...

Vaša poruka je poslana.

Nismo uspjeli poslati poruku. Molim pokušajte ponovno.

Molimo ispunite sva polja u formi.