English Deutsch Predaj Oglas (Besplatno!)   Prijava

Realitica oglasi

Traži u Napredno

SV. NEDJELJA - NOVI 4S PENTHOUSE - 2027.!

Vrsta: Prodajem Stan-Apartman
Područje: Sveta Nedelja
Lokacija: Strmec
Adresa: Sveta Nedelja,Croatia
Energetski Razred: Izuzeto od certificiranja
Cijena: €246.600
Spavaćih Soba: 4
Kupatila: 1
Stambena Površina: 82 m2

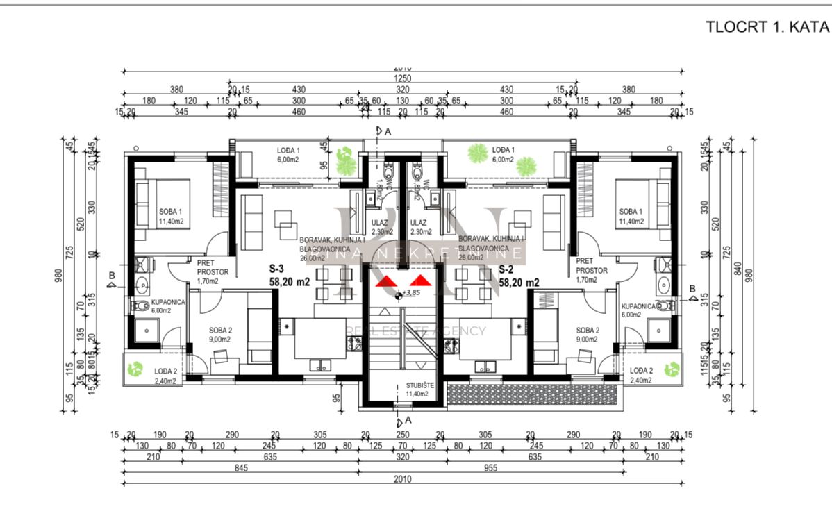
Opis: NOVOGRADNJA SVETA NEDJELJA – S4 - 4-soban 82.20m2 sa natkrivenom terasom + dva parkirna mjesta (garaža + vanjsko parkirno mjesto)+ spremište.

Prodaje se 4-soban stan u novogradnji na odličnoj lokaciji na samom ulazu Svete Nedjelje od strane Samobora u naselju Strmec, neposredna blizina glavne prometnice.

Stan se nalazi na 2.katu od 2 u urbanoj zgradi od 4 stambene jedinice, netto površine 82.20 sa natkrivenom terasom (brutto 14m2).

Cijena stana: 3.000 EUR/m2
Ukupno: 246.600 EUR

Obavezna kupnja dva parkirna mjesta:
• Vanjsko: 5.000 EUR
• Garaža: 10.000 EUR

Spremište obavezno uz nadoplatu – obračun po m2 (0,50% cijene stana po m2 spremišta).

Tlocrt: ulazni hodnik, kupaonica, dnevni boravak sa blagovaonicom i polu odvojenom kuhinjom sa vlastitim prozorom te izlazom na natkrivenu terasu idealne za uživanje, 3 spavaće sobe, wc-a. Svaka prostorija pa tako i kuhinja i kupaonice imaju svoj prozor....

Više detalja na: rina-nekretnine.hr/

Država oglašivača: HR





Oglas Broj: 3715914 (XML-4180-639600)
Postavljeno: 5 Dec, 2025
Zadnja Promjena: 5 Dec, 2025
Tags: Nekretnine Strmec | Prodaja Stanova Strmec | Nekretnine Sveta Nedelja | Prodaja Stanova Sveta Nedelja | Apartmani Sveta Nedelja Privatni Smještaj

Kontakt Forma



Prijavi Oglašivača

Kliknite na 'Pošalji' ako ovaj oglašivač koristi lažni Booking ili Airbnb ili ako je tražio IBAN uplatu

Šaljemo poruku. Molim pričekajte ...

Vaša poruka je poslana.

Nismo uspjeli poslati poruku. Molim pokušajte ponovno.

Molimo ispunite sva polja u formi.