English Deutsch Predaj Oglas (Besplatno!)   Prijava

Realitica oglasi

Traži u Napredno

Na prodaju stan u blizini crkve na Panteleju

Vrsta: Prodajem Stan-Apartman
Područje: Pantelej
Adresa: Pantelej, Niš, Srbija
Cena: €107.000
Stambena Površina: 51 m2

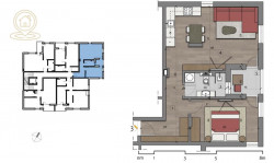
Opis: Stan 3 — Dvosoban, 50.90 m² (sa lođom)

Sprat: I ili III • Moderna novogradnja • Odličan raspored

Predstavljamo komforan dvosoban stan idealno organizovan kako za život, tako i za investiciju. Stan ima ukupnu površinu od 50.90 m², uključujući lođu od 3.35 m². Svaki kvadrat je maksimalno iskorišćen, sa jasnim zoniranjem dnevnog i noćnog dela.

Raspored prostorija:
• Hodnik – 7.50 m²
• Spavaća soba – 11.95 m²
• Kupatilo – 4.10 m²
• Dnevni boravak sa kuhinjom i trpezarijom – 24.00 m²
• Lođa – 3.35 m²

Završna obrada:
• Višeslojni parket u dnevnoj sobi, hodniku i spavaćoj sobi
• Keramičke pločice u kupatilu
• Granitna keramika na lođi

Dodatno:
Stan je prikazan u 3D modelima koji oslikavaju svetao, moderan i funkcionalan enterijer. Prostran dnevni boravak sa velikim prozorima pruža odličnu dnevnu svetlost, dok je spavaća soba koncipirana tako da obezbedi mir i privatnost.
...

Registarski broj: 1596
Država oglašivača: RS





Oglas Broj: 3716895 (4248)
Postavljeno: 7 Dec, 2025
Zadnja Promena: 7 Dec, 2025
Tags: Nekretnine Pantelej | Prodaja Stanova Pantelej | Nekretnine Niš | Prodaja Stanova Niš | Apartmani Pantelej Privatni Smještaj | Apartmani Niš Privatni Smještaj

Kontakt Forma



Prijavi Oglašivača

Kliknite na 'Pošalji' ako ovaj oglašivač koristi lažni Booking ili Airbnb ili ako je tražio IBAN uplatu

Šaljemo poruku. Molim pričekajte ...

Vaša poruka je poslana.

Nismo uspjeli poslati poruku. Molim pokušajte ponovno.

Molimo ispunite sva polja u formi.