English Deutsch Predaj Oglas (Besplatno!)   Prijava

Realitica oglasi

Traži u Napredno

Na prodaju urbanizovan plac, Rogame

Vrsta: Prodajem Zemljište
Područje: Podgorica Okolina
Lokacija: Rogame
Cijena: €215.000
Zemljište: 2.449 m2

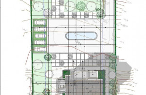
Opis: Na prodaju urbanizovan plac u Rogamima!
Lokacija: Rogami
Površina: 2.449 m²

Plac je urbanizovan, posjeduje gotov projekat kuće od 250 m², za koji su sve komunalije već plaćene.
Direktan pristup na put
Panoramski pogled
Bez tereta i opterećenja

Cijena: 215.000 €

ID: 639

Više detalja na: lumaroproperties.me/

Država oglašivača: ME





Oglas Broj: 3721065
Postavljeno: 12 Dec, 2025
Zadnja Promjena: 12 Dec, 2025
Tags: Nekretnine Rogame | Prodaja Zemljišta Rogame | Nekretnine Podgorica Okolina | Prodaja Zemljišta Podgorica Okolina

Kontakt Forma



Prijavi Oglašivača

Kliknite na 'Pošalji' ako ovaj oglašivač koristi lažni Booking ili Airbnb ili ako je tražio IBAN uplatu

Šaljemo poruku. Molim pričekajte ...

Vaša poruka je poslana.

Nismo uspjeli poslati poruku. Molim pokušajte ponovno.

Molimo ispunite sva polja u formi.