🇬🇧 🇩🇪 📝 Predaj Oglas (Besplatno!)   Prijava

Realitica oglasi

Traži u Napredno

ISTRA, PULA - Stan 1S+DB s vrtom u blizini centra! NOVOGRADNJA!

Vrsta: Prodajem Stan-Apartman
Područje: Pula
Lokacija: Valmade
Adresa: Pula,Croatia
Energetski Razred: Izuzeto od certificiranja
Cijena: €255.000
Spavaćih Soba: 1
Kupatila: 1
Stambena Površina: 72 m2
Zemljište: 125 m2

Opis: ISTRA, PULA - Stan 1S+DB s vrtom u blizini centra! NOVOGRADNJA!

U ponudi DUX nekretnina nudimo stan s vrtom u neposrednoj blizini centra!
Radi se o novom stambenom kompleksu ali predmetna zgrada ima sveukupno 4 stambene jedinice.

LOKACIJA:

Na pješačkoj udaljenosti od trgovine, teretane , kafića i restorana tako da su vam svi sadržaji osigurani zaista blizu dok je strogi centar grada udaljen 15 minuta hoda!

Završetak radova kraj 2026. godine.

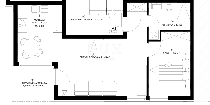
Predmetni stan nudi 54,50 m2 stambenog prostora, vrt od 125 m2 , spremište i parkirno mjesto sveukupne površine od 72,30 m2.

Oprema:
Klima uređaji u dnevnom boravku i svim spavaćim sobama
Električno podno grijanje u dnevnom boravaku, blagovaonici, kuhinji, hodniku i kupaonici
U spavaćim sobama laminat, ostatak stana keramičke pločice
PVC stolarija antracit boje s komarnicima
Električni podizači roleta iznad staklene stijene u dnevnom boravku

Faze plaćanja:...

Više detalja na: dux-nekretnine.hr/

Registarski broj: 040262912





Oglas Broj: 3722886 (XML-4108-641322)
Postavljeno: 16 Dec, 2025
Zadnja Promjena: 16 Dec, 2025
Tags: Nekretnine Valmade | Prodaja Stanova Valmade | Nekretnine Pula | Prodaja Stanova Pula | Apartmani Pula Privatni Smještaj

Kontakt Forma



Prijavi Oglašivača

Kliknite na 'Pošalji' ako ovaj oglašivač koristi lažni Booking ili Airbnb ili ako je tražio IBAN uplatu

Šaljemo poruku. Molim pričekajte ...

Vaša poruka je poslana.

Nismo uspjeli poslati poruku. Molim pokušajte ponovno.

Molimo ispunite sva polja u formi.