🇬🇧 🇩🇪 📝 Predaj Oglas (Besplatno!)   Prijava

Realitica oglasi

Traži u Napredno

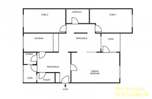
Voždovac, Banjica - Paunova, 86m2

Vrsta: Prodajem Stan-Apartman
Područje: Voždovac
Lokacija: Banjica
Adresa: Paunova, Beograd
Cena: €206.000
Godina Gradnje: 1980
Stambena Površina: 86 m2

Opis: Voždovac, Banjica - Paunova

3.0, 86m2 (dve lođe 6m2), 9/12, CG, dva lifta, interfon, podrum

Veoma komforan i odlično očuvan stan, dvostrano orijentisan sa fantastičnim pogledom. Nalazi se u urednoj i dobro održavanoj vojnoj zgradi od crvene fasadne cigle, okružene zelenilom i smeštene u blizini tržnog centra, škole, pijace, mnoštva prehrambenih marketa i autobuskog stajališta.

Sastoji se od velikog dnevnog boravka, kuhinje pored koje je ostava trpezarije, odvojenog spavaćeg bloka sa dve prostrane sobe, kupatila, gostinjskog toaleta i dve lođe od kojih je jedna pored kuhinje a druga pored trpezarije i dnevne sobe.

U stanu postoji protočna topla voda, kao i više ugradnih plakara.

U okruženju ima više slobodnih parkinga.

Uknjižen na 86m2 građevinske površine i na 80m2 korisne površine.

Agencijska provizija 2%.

Agent Vesna Đurđević: 064/29-56-579 (licenca br. 1715)

Više detalja na: kvadratnekretnine.com

Registarski broj: 167
Država oglašivača: RS





Oglas Broj: 3723325
Postavljeno: 16 Dec, 2025
Zadnja Promena: 16 Dec, 2025
Tags: Nekretnine Banjica | Prodaja Stanova Banjica | Nekretnine Voždovac | Prodaja Stanova Voždovac | Nekretnine Beograd | Prodaja Stanova Beograd | Apartmani Voždovac Privatni Smještaj | Apartmani Beograd Privatni Smještaj

Kontakt Forma



Prijavi Oglašivača

Kliknite na 'Pošalji' ako ovaj oglašivač koristi lažni Booking ili Airbnb ili ako je tražio IBAN uplatu

Šaljemo poruku. Molim pričekajte ...

Vaša poruka je poslana.

Nismo uspjeli poslati poruku. Molim pokušajte ponovno.

Molimo ispunite sva polja u formi.