🇬🇧 🇩🇪 📝 Predaj Oglas (Besplatno!)   Prijava

Realitica oglasi

Traži u Napredno

Prodajem Stan-Apartman, Matulji, €228.000

Vrsta: Prodajem Stan-Apartman
Područje: Matulji
Lokacija: Matulji
Adresa: Opatija, Matulji
Cijena: €228.000
Spavaćih Soba: 2
Stambena Površina: 68 m2

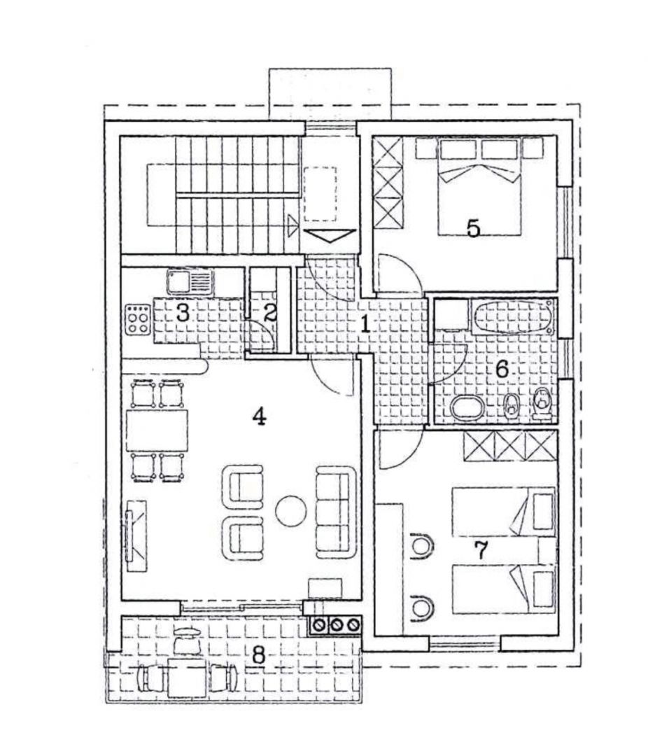
Opis (Engleski): In Matulji, in the Jurdani neighborhood of Permani, a 68 m² apartment is for sale on the first floor. The apartment features a hallway, a living room with a dining area, two bedrooms, a bathroom, a storage room, and a terrace. It is part of a duplex building containing a total of three residential units. The apartment comes with two designated outdoor parking spaces.The location offers excellent infrastructure within a radius of 250 meters to 1.5 km, including easy access to the bypass, a bus stop, post office, bank, sports center, medical clinic, pharmacy, restaurants, school, kindergarten, shopping center, and a gas station.The purchase price includes VAT, so the future buyer is exempt from paying property transfer tax, making this an attractive opportunity for those looking for real estate in Croatia for sale, an apartment in Rijeka for sale, or a property in Kvarner for sale. Ref: RE-U-37097

Više detalja na: adrionika.com/ru/nedvizhi...

Država oglašivača: HR





Oglas Broj: 3724930 (148692)
Postavljeno: 18 Dec, 2025
Zadnja Promjena: 18 Dec, 2025
Tags: Nekretnine Matulji | Prodaja Stanova Matulji | Apartmani Matulji Privatni Smještaj

Kontakt Forma



Prijavi Oglašivača

Kliknite na 'Pošalji' ako ovaj oglašivač koristi lažni Booking ili Airbnb ili ako je tražio IBAN uplatu

Šaljemo poruku. Molim pričekajte ...

Vaša poruka je poslana.

Nismo uspjeli poslati poruku. Molim pokušajte ponovno.

Molimo ispunite sva polja u formi.