🇬🇧 🇩🇪 📝 Predaj Oglas (Besplatno!)   Prijava

Realitica oglasi

Traži u Napredno

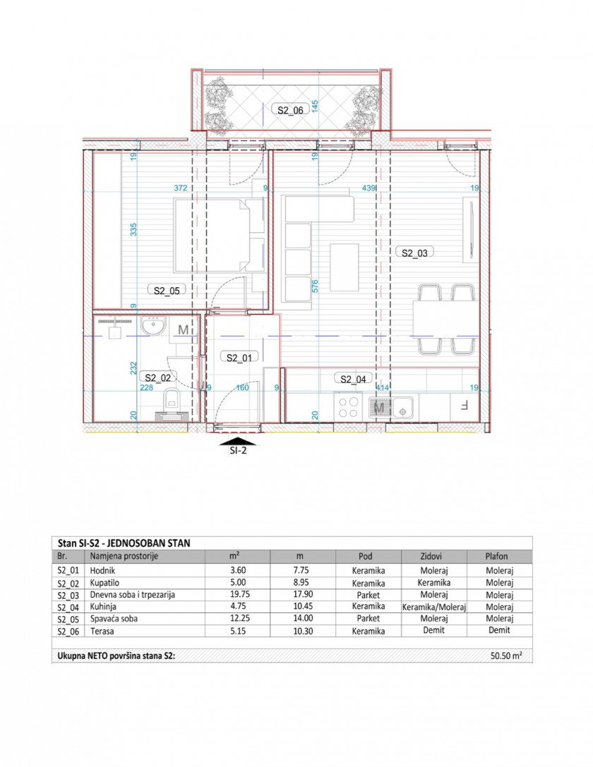
Prodajemo- jednosoban stan 51m2 u Momišićima

Vrsta: Prodajem Stan-Apartman
Područje: Podgorica
Lokacija: Momišići
Energetski Razred: A+
Cijena: €2.200
Spavaćih Soba: 1
Kupatila: 1
Stambena Površina: 51 m2
Parking Mjesta: 1
Novogradnja
Klima Uređaj

Opis: Prodajemo- jednosoban stan u Momišićima, na 1. spratu. Zgrada je započeta i rok završetka je decembar 2026. Kvadratura stana je 51m2. Kupac je oslobođen plaćanja prevoda prilikom kupovine nekretnine. Stan nema svoje garazno mijesto ali je moguce uzetu od investitora.
Cijena: 2200€/m2
Za sve informacije pozovite:
Cvetanka +38267757755
www.remontenegro.me


Više detalja na: remontenegro.me/nekretnin...

Država oglašivača: ME





Oglas Broj: 3725165
Postavljeno: 18 Dec, 2025
Zadnja Promjena: 18 Dec, 2025
Tags: Nekretnine Momišići | Prodaja Stanova Momišići | Nekretnine Podgorica | Prodaja Stanova Podgorica | Apartmani Podgorica Privatni Smještaj

Kontakt Forma



Prijavi Oglašivača

Kliknite na 'Pošalji' ako ovaj oglašivač koristi lažni Booking ili Airbnb ili ako je tražio IBAN uplatu

Šaljemo poruku. Molim pričekajte ...

Vaša poruka je poslana.

Nismo uspjeli poslati poruku. Molim pokušajte ponovno.

Molimo ispunite sva polja u formi.