🇬🇧 🇩🇪 📝 Predaj Oglas (Besplatno!)   Prijava

Realitica oglasi

Traži u Napredno

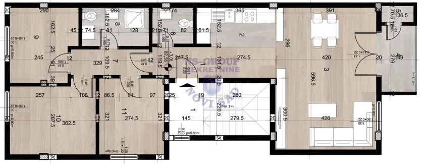
Troiposoban stan u izgradnji, PDV, Telep!

Vrsta: Prodajem Stan-Apartman
Područje: Novi Sad
Lokacija: Telep
Cena: €194.110
Spavaćih Soba: 4
Kupatila: 2
Stambena Površina: 79 m2
Novogradnja

Opis: Predstavljamo vam odličnu izgradnju na Telepu. Vrhunksi kvalitet gradnje i opreme. Rok izgradnje je oktobar 2026. godine plus 60 dana. Odlična lokacija za život, u blizini osnovna škola i vrtić, market, autobuska stanica. Mogućnost povrata PDV-a za kupce prve nekretnine. Podno grejanje na gas obezbeđuje ravnomernu temperaturu u celom stanu, bez vidljivih radijatora i sa ekonomičnom potrošnjom. Može se kupiti parking mesto. Ne propustite ovu sjajnu priliku. Za više informacija pozovite naše agente. 021/425-112, 064/8222147, 061/6608824


Država oglašivača: RS





Oglas Broj: 3726167
Postavljeno: 19 Dec, 2025
Zadnja Promena: 19 Dec, 2025
Tags: Nekretnine Telep | Prodaja Stanova Telep | Nekretnine Novi Sad | Prodaja Stanova Novi Sad | Apartmani Novi Sad Privatni Smještaj

Kontakt Forma



Prijavi Oglašivača

Kliknite na 'Pošalji' ako ovaj oglašivač koristi lažni Booking ili Airbnb ili ako je tražio IBAN uplatu

Šaljemo poruku. Molim pričekajte ...

Vaša poruka je poslana.

Nismo uspjeli poslati poruku. Molim pokušajte ponovno.

Molimo ispunite sva polja u formi.