Hrvatski English Deutsch Neue Anzeige schalten (kostenlos!)   Anmelden

Realitica Kleinanzeigen

Suche in Erweiterte

Bauland Verkauf - Baugrundstück mit Projekt für den Bau einer einstöckigen Villa, Žminj V1

Typ: Baugrundstück zum Verkauf
Bezirk: Žminj
Ort: Žminj
Adresse: Žminj, Hrvatska
Energieeffizienzklasse: Ausgenommen
Preis: €92.100
Landfläche: 1.375 m2

Beschreibung: Zum Verkauf steht ein attraktives Baugrundstück im Herzen Istriens, zwischen den historischen Städten Gračišće, Lindar und Žminj.
Das Grundstück befindet sich auf einer sanften Erhebung, umgeben von Eichenwald, was eine perfekte Umgebung für alle bietet, die die Natur, Ruhe und Privatsphäre schätzen.

Grundinformationen:
-Fläche des Grundstücks: 1.375 m²
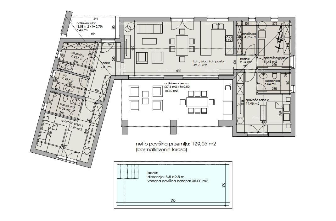
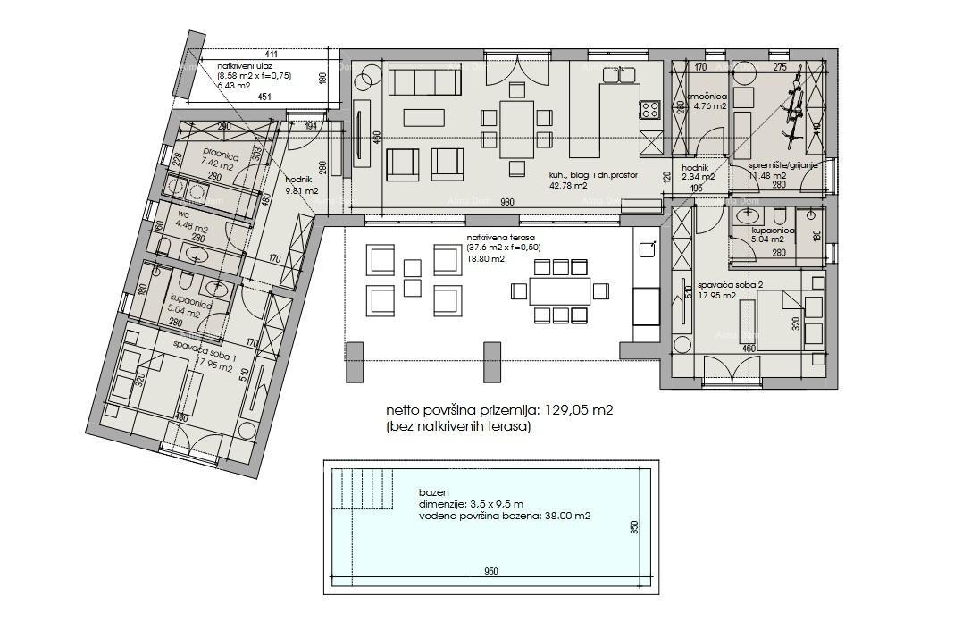
-Nettowohnfläche des Hauses: 129 m² Innenraum
-Bedeckte Terrasse: 38 m²
-Bedeckter Eingang: 8 m²
-Anzahl der Etagen: Erdgeschoss
-Parkplätze: 2

Das Projekt sieht eine Kombination aus moderner Architektur und traditionellem mediterranem Stil vor, mit einem Fokus auf natürliche Materialien wie Stein, Holz und Beton. Große Glaswände verbinden die Innenräume mit der umliegenden Landschaft und bieten einen offenen Blick auf die Natur und den Pool.

Raumaufteilung

Erdgeschoss: Offenes Konzept für Wohn- und Essbereich, Küche, Wirtschaftsraum mit Toilette sowie ein Schlafzimmer mit eigenem Bad. Vom Wohnbereich gelangt man auf die überdachte Terrasse und den Pool.

Die Böden sind mit Parkett ausgelegt, während in den Bädern keramische Fliesen verlegt sind....

Mehr Infos unter: therealestatecroatia.com/...

Land des Werbetreibenden: HR





Ausweisnummer: 3677658 (24627)
Veröffentlicht: 16 Oct, 2025
Letzte änderung: 16 Oct, 2025
Tags: Immobilien Žminj | Zum Verkauf Baugrundstücke Žminj

Kontaktformular



Diesen Inserenten melden

Klicken Sie auf „Senden“, wenn dieser Inserent gefälschte Booking- oder Airbnb-Daten verwendet oder Sie auffordert, Geld zu überweisen

Nachricht wird gesendet. Bitte warten ...

Ihre E-Mail wurde abgeschickt.

Es gab ein Problem beim Senden Ihre Nachricht. Bitte versuchen Sie es erneut.

Bitte füllen Sie alle Felder im Formular vor dem Versenden.