🇭🇷 🇬🇧 🇩🇪 📝 Add Listing (Free!)   Login

Realitica classifieds

Search in Advanced

Apartment For Sale, Makarska

Type: Apartment For Sale
District: Makarska
Energy Label: A+
Price: €220.000
Bedrooms: 2
Baths: 2
Living Area: 65 m2
Parking Spots: 1
From Shore (m): 720
New Construction
Air Conditioning

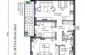
Description (Croatian): Dvosoban stan na prvom katu stambene zgrade s liftom u izgradnji. Stan je ukupne površine 65m2 i sastoji se od hodnika, dnevnog boravka s kuhinjom i blagovaonicom te izlazom na jugozapadnu lođu i balkon ukupne površine 10m2 s kojeg se pruža otvoren neometan pogled na more, dvije spavaće sobe, kupaonice i wc-a. Objekt je od mora udaljen 720m te se nalazi u blizini škole, vrtića, trgovine… U gradnji i opremanju će se koristiti vrhunski materijali i oprema ( termo fasada, ulazna blindo vrata, sobna vrata renomiranog proizvođača, trokomorni vanjski otvori, staklena ograda na balkonima, uređene kupaonice s walk in tuševima, keramika prve klase, klima uređaji… ). Stanu pripada vanjsko parkirno mjesto, cijena istog: 10.000,00 eur. Završetak gradnje se očekuje do kraja 2026. godine.

More info at: navis-nekretnine.hr/nekre...

Advertiser country: HR





Listing ID: 3719935
Published: 11 Dec, 2025
Last Modified: 11 Dec, 2025
Tags: Real Estate Makarska | For Sale Apartments Makarska | Apartments Makarska Split Dalmatia for Rent by Owner

Contact Form



Report this advertiser

Click 'submit' if this advertiser uses fake Booking or Airbnb or asks you to wire money

Sending message. Please wait ...

Your email has been sent.

There was a problem sending your message. Please try again.

Please complete all the fields in the form before sending.