English Deutsch Predaj Oglas (Besplatno!)   Prijava

Realitica oglasi

Traži u Napredno

Kuća s projektom u centru Varaždina

Vrsta: Prodajem Kuću
Područje: Varaždin
Lokacija: Varaždin
Adresa: Varaždin,Croatia
Energetski Razred: Izuzeto od certificiranja
Cijena: €300.000
Spavaćih Soba: 2
Kupatila: 1
Stambena Površina: 137 m2
Zemljište: 586 m2

Opis: IZVRSNA INVESTICIJSKA PRILIKA – KUĆA S ODOBRENIM PROJEKTOM ZA IZGRADNJU 5 STANOVA U CENTRU VARAŽDINA

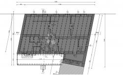
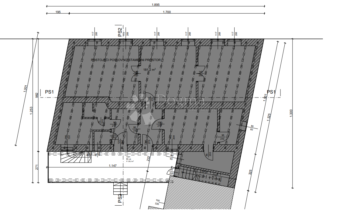
Prodaje se kuća s iznimnim investicijskim potencijalom u užem centru grada Varaždina, idealna za investitore ili developere koji traže projekt s već odobrenom dokumentacijom i mogućnošću brze realizacije. Nekretnina dolazi s odobrenim projektom za izgradnju pet stambenih jedinica – dvije u prizemlju i tri na katu.

U prizemlju se nalaze dva prostrana stana: prvi stan s kuhinjom, kupaonicom i tri sobe povezane s hodnikom, te drugi stan koji ima hodnik, kuhinju, dvije sobe i kupaonicu. Na katu su predviđene tri dodatne stambene jedinice modernog rasporeda, s izvrsnim potencijalom za prodaju ili najam.

Posebna prednost ove nekretnine je činjenica da kuća u jednom dijelu ima i podrum, što predstavlja dodatnu vrijednost i priliku za stvaranje zanimljivog poslovnog prostora prema interesima investitora – primjerice, za ured, atelje, mini galeriju, vinski podrum ili manju ugostiteljsku ponudu.

Prema odobrenom projektu, u dvorištu je predviđeno pet parkirnih mjesta, što dodatno povećava funkcionalnost i privlačnost budućih stanova....

Više detalja na: dogma-nekretnine.com/






Oglas Broj: 3691105 (XML-4002-126377)
Postavljeno: 3 Nov, 2025
Zadnja Promjena: 3 Nov, 2025
Tags: Nekretnine Varaždin | Prodaja Kuća Varaždin

Kontakt Forma



Prijavi Oglašivača

Kliknite na 'Pošalji' ako ovaj oglašivač koristi lažni Booking ili Airbnb ili ako je tražio IBAN uplatu

Šaljemo poruku. Molim pričekajte ...

Vaša poruka je poslana.

Nismo uspjeli poslati poruku. Molim pokušajte ponovno.

Molimo ispunite sva polja u formi.